Vente Appartement 3 pièces
Type
Bien immobilierTarif
369 000 €Chambres
0Salles de bain
0Vente Appartement 3 pièces
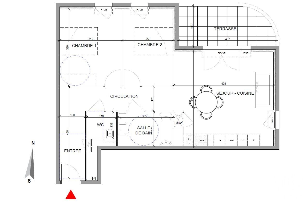
Iad France - Jamey Costantini Gregory (07 83 56 39 14) vous propose : Découvrez votre futur espace de vie avec ses caractéristiques bien pensées : - Séjour-Cuisine spacieux de 23,46 m² environ, idéal pour des moments conviviaux. - Une entrée accueillante de 3,90 m² environ avec placard intégré. - Un couloir de circulation de 8,49 m² environ desservant harmonieusement les pièces. - Chambre 1 confortable de 12,04 m² environ, promesse de nuits paisibles. - Chambre 2 de 9,65 m² environ, parfaite pour enfants ou bureau. - WC pratique de 1,98 m² environ. - Salle de bains moderne de 4,74 m² environ. Équipements de qualité : - Fenêtres (F), Porte-fenêtres (PF) et Volets Roulants (VR) pour un confort optimal. - Ballon Thermodynamique pour une gestion énergétique efficace. - Emplacements prévus pour Lave-linge (L. L) et Lave-vaisselle (L. V). - Cuisine équipée d'une plaque de cuisson (C.), d'un frigo (Fr.) et d'un évier (Ev.). À noter : Les informations graphiques sont indicatives et peuvent varier selon les nécessités techniques de construction. Des modifications de structure comme les poutres, soffites, faux-plafonds et canalisations apparentes peuvent être ajoutées. Les dimensions et surfaces sont approximatives, sujettes aux exigences de construction et tolérances d'exécution. Le mobilier et l'électroménager ne sont pas inclus. Surface habitable totale : 64,26 m² environ Terrasse extérieure : 9,00 m² environ Un plan de vie qui s'adapte à vos besoins, avec la promesse d'un chez-vous où il fait bon vivre. Honoraires d’agence à la charge du vendeur. Bien non soumis au DPE. Les informations sur les risques auxquels ce bien est exposé sont disponibles sur le site Géorisques : www.georisques.gouv.fr. La présente annonce immobilière a été rédigée sous la responsabilité éditoriale de M. Jamey Costantini Gregory EI (ID 78092), mandataire indépendant en immobilier (sans détention de fonds), agent commercial de la SAS I@D France immatriculé au RSAC de ANTIBES sous le numéro 883222135, titulaire de la carte de démarchage immobilier pour le compte de la société I@D France SAS. Retrouvez tous nos biens sur notre site internet. www.iadfrance.fr.
Détails de l'annonce
Localisation
Ville
Cagnes-sur-Mer
Pays
FR
Surfaces / Pièces / Composition
Nombre d’étages
Chauffage et diagnostics
Diagnostic de performance énergétique (DPE)
a
b
c
d
e
f
g
Indice d'émission de gaz à effet de serre (GES)
a
b
c
d
e
f
g
