Vente Maison/villa 4 pièces
Type
Bien immobilierTarif
92 000 €Chambres
3Salles de bain
0Vente Maison/villa 4 pièces
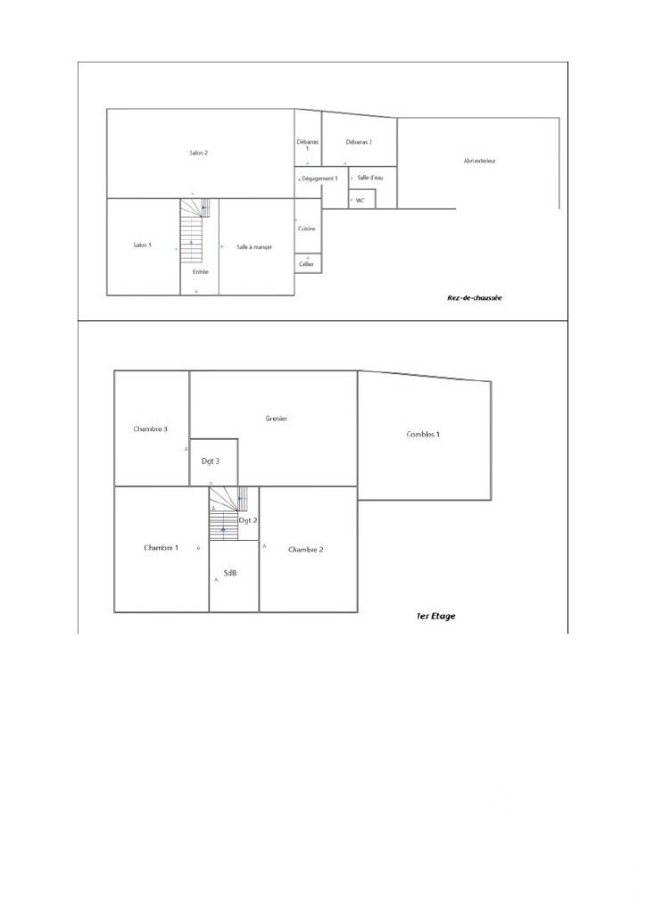
Iad France - Martine Charrier vous propose : Maison mitoyenne à rénover – 150 m² – Terrain 2800 m² – Village avec commodités - A 10 min de l'autoroute Située dans un village calme disposant d'une école, d'un médecin et d'une supérette, cette maison mitoyenne d'environ 150 m² habitables sur deux niveaux offre un beau potentiel après rénovation. Implantée sur un terrain de 2800 m², elle se compose actuellement de plusieurs pièces à réaménager selon vos besoins. Gros OEuvre en bon état – travaux d'aménagement intérieur à prévoir. Idéale pour résidence principale ou projet locatif.
Détails de l'annonce
Localisation
Ville
Lamothe-Landerron
Pays
FR
Diagnostics / Énergie
Diagnostic DPE
231
Diagnostic GES
61
Surfaces / Pièces / Composition
Nombre d’étages
2
Chauffage et diagnostics
Diagnostic de performance énergétique (DPE)
a
b
c
d
e
f
g
Indice d'émission de gaz à effet de serre (GES)
a
b
c
d
e
f
g
