Type
Bien immobilierTarif
399 000 €Chambres
Salles de bain
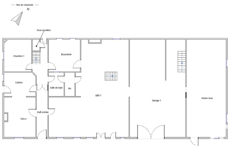
Maison de charme à rénover Maison de caractère datant du début du XX siècle. Située dans un quartier calme et recherché, cette charmante maison des années 1930 représente une jolie opportunité pour les amateurs rénovations. Avec environ 160 m2 habitables, elle séduit par ses volumes généreux, ses hauts plafonds et ses moulures d'époque, qui lui confèrent une atmosphère chaleureuse et authentique. Les pièces, spacieuses et baignées de lumière, offrent de multiples possibilités d'aménagement selon vos envies. Des travaux importants sont à prévoir : toiture, électricité, système de chauffage, menuiseriesâeuros¦ Un projet de rénovation complet à la hauteur du potentiel exceptionnel de ce bien chargé d'histoire. La maison est implantée sur un terrain plat, arboré et constructible, offrant la possibilité d'une division parcellaire. Ce potentiel foncier peut venir compléter un projet de rénovation ambitieux ou accueillir une nouvelle construction. Un extérieur agréable, à paysager selon vos goûts, vous permettra de profiter pleinement des beaux jours dans un cadre paisible et verdoyant. Classe énergétique E (consommation d'énergie primaire: 278kWh/m2/an, consommation d'énergie finale : 272kWh/m2/an), classe climat E (61Kg CO2/m2/an) Montant estimé des dépenses annuelles d'énergie pour un usage standard : entre 2376euros et 3214euros par an. Prix moyens des énergies indexés sur l'année 2021 (abonnements compris). Les informations sur les risques auxquels ce bien est exposé sont disponibles sur le site Géorisques : www.georisques.gouv.fr Honoraires charge vendeur.
Détails de l'annonce
Caractéristiques / Équipements
Alarme
Oui
Piscine
Oui
Localisation
Ville
Nimes
Pays
France
Orientations
Orientation Ouest
Oui
Diagnostics / Énergie
Diagnostic DPE
E
Diagnostic GES
E
Finances / Mandat / Références
Honoraires vendeur
€
Type de mandat
06/12/2025
Chauffage et diagnostics
Diagnostic de performance énergétique (DPE)
a
b
c
d
e
f
g
Indice d'émission de gaz à effet de serre (GES)
a
b
c
d
e
f
g
