Type
Bien immobilierTarif
295 000 €Chambres
7Salles de bain
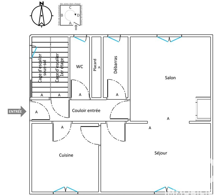
Centre ville Auterive quartier Madeleine, maison des années 70 à étage de 10 pièces sur une parcelle de 736 m2 environ. Ce bien est aujourd'hui à usage professionnel mais est adaptable en une très confortable habitation ou encore divisée en appartements. Le rez-de-chaussée offre 4 grandes pièces de 16 à 20 m2, un WC et une cuisine, distribués par une large dégagement ainsi qu'un local avec vitrine et entrée indépendante. L'étage se compose de 5 bureaux de 17 à 22 m2, d'un WC, et d'un vaste espace accueil/salle d'attente pouvant être cloisonné. Beaucoup de luminosité grâce aux larges ouvertures, de beaux sols vintage dans plusieurs pièces. Chauffage gaz et climatisation réversible dans toutes les pièces. Stationnement possible de plusieurs véhicules. Très beau potentiel. Contactez-nous pour en savoir plus et pour visiter !
1
Les informations sur les risques auxquels ce bien est exposé sont disponibles sur le site Géorisques : www.georisques.gouv.fr
1
Les informations sur les risques auxquels ce bien est exposé sont disponibles sur le site Géorisques : www.georisques.gouv.fr
Détails de l'annonce
Localisation
Ville
Auterive
Pays
France
Caractéristiques / Équipements
Terrasse
Oui
Diagnostics / Énergie
Diagnostic DPE
D
Diagnostic GES
D
Finances / Mandat / Références
Numéro de mandat
1207
Type de mandat
24/01/2025
Chauffage et diagnostics
Diagnostic de performance énergétique (DPE)
a
b
c
d
e
f
g
Indice d'émission de gaz à effet de serre (GES)
a
b
c
d
e
f
g
