Vente Maison/villa 7 pièces
Type
Bien immobilierTarif
549 900 €Chambres
5Salles de bain
0Vente Maison/villa 7 pièces
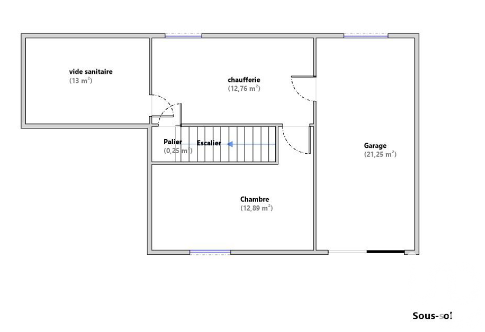
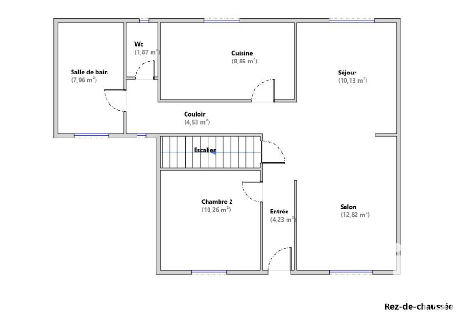
Iad France - Caroline Cornu vous propose : Quartier du Bois de Gaumont, cette maison de construction 1995, au DPE B, vous offre 150 m² habitables, au calme et à proximité de l'école Jean Renon, des commerces, et des transports (à 1km à pied de la gare de Villiers) ! Maison économe en énergie ! DPE B et pompe à chaleur récente ! Au rez-de-chaussée : •Entrée avec placards •Triple séjour lumineux de 49 m² environ, avec bow-window et cheminée, donnant sur terrasse et jardin •Grande cuisine, aménagée et équipée (fermée mais peut s'ouvrir sur le séjour) •1 Chambre •WC À l’étage : •4 chambres avec placards dont 1 suite parentale avec salle de bains (baignoire + douche) •Salle d’eau •WC Sous-sol total : •Buanderie •Espace de stockage •Double garage Les + : Pompe à chaleur neuve (2024) – DPE : B Place de stationnement supplémentaires Dépendance, terrasse et jardin Cette maison est idéale pour les familles recherchant espaces, luminosité et un extérieur agréable ! À visiter sans tarder ! Contactez-moi ! Honoraires d'agence à la charge du vendeur. Information d'affichage énergétique sur ce bien : classe ENERGIE B indice 88 et classe CLIMAT A indice 2. Les informations sur les risques auxquels ce bien est exposé, y compris l'obligation légale de débroussaillement, sont disponibles sur le site Géorisques : http://www.georisques.gouv.fr. La présente annonce immobilière a été rédigée sous la responsabilité éditoriale de Mme Caroline Cornu mandataire indépendant en immobilier (sans détention de fonds), agent commercial de la SAS I@D France immatriculé au RSAC de Créteil sous le numéro 914889209, titulaire de la carte de démarchage immobilier pour le compte de la société I@D France SAS.
Détails de l'annonce
Localisation
Ville
Villiers-sur-Marne
Pays
FR
Diagnostics / Énergie
Diagnostic DPE
88
Diagnostic GES
2
Surfaces / Pièces / Composition
Nombre d’étages
3
Chauffage et diagnostics
Diagnostic de performance énergétique (DPE)
a
b
c
d
e
f
g
Indice d'émission de gaz à effet de serre (GES)
a
b
c
d
e
f
g
