Vente Maison de village 5 pièces
Type
Bien immobilierTarif
120 000 €Chambres
4Salles de bain
0Vente Maison de village 5 pièces
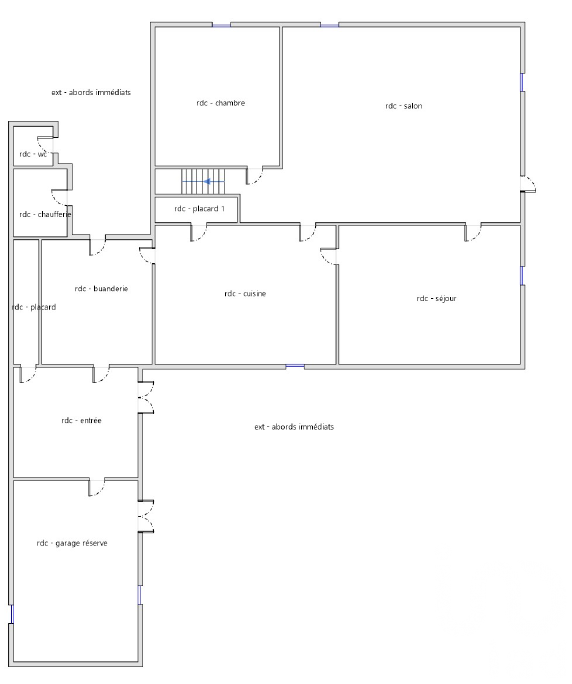
Iad France - Jauffrey Domengine vous propose : Vous aimez rénové pour rendre tout le cachet des maisons de village ? Alors cette magnifique maison située dans le village à Tadousse-Ussau, à 7 min de Garlin et des commodités ainsi de 15 min de Lembeye, est fait pour vous. Elle offre un cadre de vie exceptionnel pour les amoureux de l'espace et de la nature. Avec une surface habitable de 166 m² et un vaste terrain de 800 m² Au rez-de-chaussée, vous découvrirez un espace de vie lumineux composé d'un séjour spacieux avec sa cheminée d'époque, d'une salle à manger, une cuisine et une arrière cuisine ainsi que d'une chambre L'étage offre trois grandes chambres, un espace pour dressing ou bureau, une salle de bain et un WC. Le jardin entretenu vous séduira pour des petits moments tranquilles. Un garage vient également compléter ce bien. Contactez-moi pour organiser une visite et laissez-vous séduire par le potentiel de cette propriété. Honoraires d'agence à la charge du vendeur. Information d'affichage énergétique sur ce bien : classe ENERGIE F indice 294 et classe CLIMAT F indice 82. Les informations sur les risques auxquels ce bien est exposé, y compris l'obligation légale de débroussaillement, sont disponibles sur le site Géorisques : http://www.georisques.gouv.fr. La présente annonce immobilière a été rédigée sous la responsabilité éditoriale de M Jauffrey Domengine mandataire indépendant en immobilier (sans détention de fonds), agent commercial de la SAS I@D France immatriculé au RSAC de Saint Denis de la Réunion sous le numéro 523158996, titulaire de la carte de démarchage immobilier pour le compte de la société I@D France SAS.
Détails de l'annonce
Localisation
Ville
Tadousse-Ussau
Pays
FR
Diagnostics / Énergie
Diagnostic DPE
294
Diagnostic GES
82
Surfaces / Pièces / Composition
Nombre d’étages
2
Chauffage et diagnostics
Diagnostic de performance énergétique (DPE)
a
b
c
d
e
f
g
Indice d'émission de gaz à effet de serre (GES)
a
b
c
d
e
f
g
