Trouver...

Language: FR

Devise: EUR

Type
Bien immobilier
Tarif
267 000 €
Chambres
5
Salles de bain
0

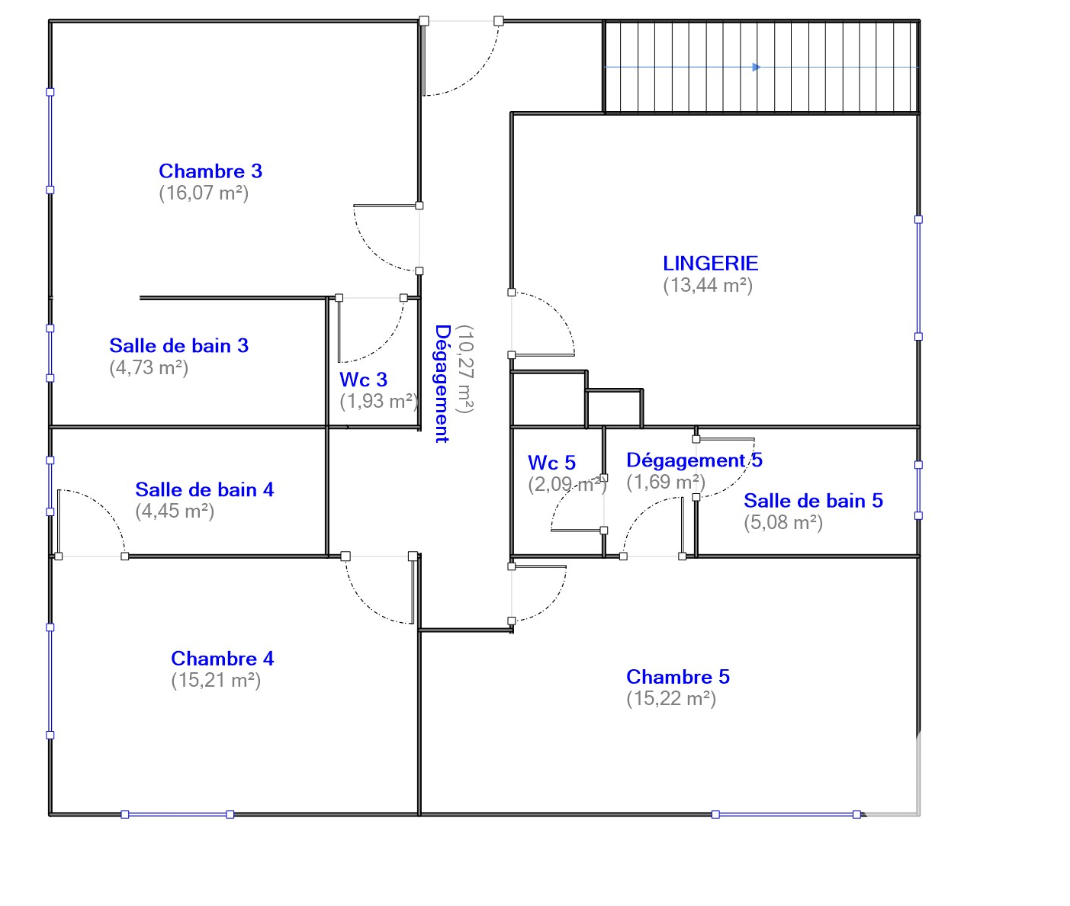
Vente Maison/villa 6 pièces

Iad France - Cindy Férec vous propose : Magnifique Maison de 175 m² avec Jardin et Terrasse à Créances Laissez-vous séduire par cette somptueuse maison individuelle située à Créances, offrant un cadre de vie paisible et chaleureux. Construite en 1950 et bien entretenue, cette propriété de 175 m² sur 2 étages promet confort et sérénité à ses occupants. Au rez-de-chaussée, vous découvrirez un espace de vie spacieux comprenant une salle à manger conviviale. La maison dispose de 5 chambres confortables avec leurs salles d'eau et WC privatifs, idéales pour accueillir une grande famille. L'extérieur offre un jardin verdoyant où petits et grands pourront se détendre et profiter des beaux jours. Deux terrasses bien exposées, au sud et à l'ouest, permettent de savourer des moments de convivialité en plein air. Les aménagements annexes incluent une buanderie pratique et des dégagements bien pensés pour optimiser l'espace de rangement. Les prestations de cette maison sont de qualité, avec une installation de tout-à-l'égout pour un confort optimal. Idéalement située et bénéficiant d'une exposition sud-ouest, cette propriété ravira les amateurs de tranquillité et de confort. Une opportunité rare à ne pas manquer à proximité de la mer à Créances. Contactez-nous dès maintenant pour organiser une visite et découvrir votre futur havre de paix. Honoraires d'agence à la charge du vendeur. Information d'affichage énergétique sur ce bien : classe ENERGIE D indice 194 et classe CLIMAT B indice 6. Les informations sur les risques auxquels ce bien est exposé, y compris l'obligation légale de débroussaillement, sont disponibles sur le site Géorisques : http://www.georisques.gouv.fr. La présente annonce immobilière a été rédigée sous la responsabilité éditoriale de Mme Cindy Férec mandataire indépendant en immobilier (sans détention de fonds), agent commercial de la SAS I@D France immatriculé au RSAC de Brest sous le numéro 493779516, titulaire de la carte de démarchage immobilier pour le compte de la société I@D France SAS.

Détails de l'annonce

Localisation

Ville
Créances
Pays
FR

Diagnostics / Énergie

Diagnostic DPE
194
Diagnostic GES
6

Surfaces / Pièces / Composition

Nombre d’étages
2

Chauffage et diagnostics

Diagnostic de performance énergétique (DPE)
a
b
c
d
e
f
g
Indice d'émission de gaz à effet de serre (GES)
a
b
c
d
e
f
g
Rappelez-moi
Nos partenaires