Vente Maison/villa 6 pièces
Type
Bien immobilierTarif
270 000 €Chambres
5Salles de bain
0Vente Maison/villa 6 pièces
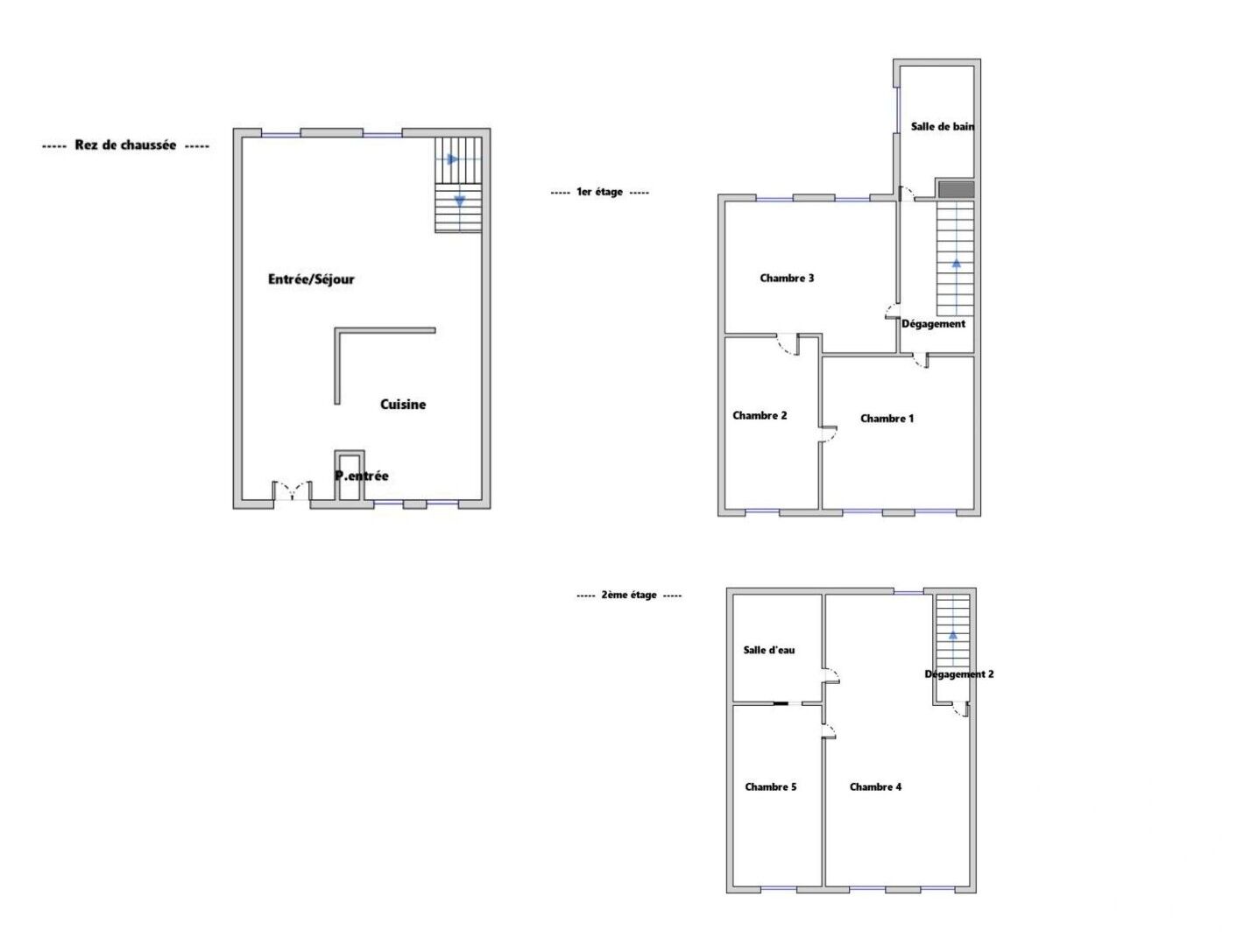
Iad France - Yann Thomas vous propose : Charmante maison de 164 m² au cOEur de Vielmur-sur-Agout ! Du début du 19ème siècle, parfaitement entretenue et rénovée, elle est prête à accueillir sa nouvelle famille ! À 15 min de Castres et à moins d'une heure de Toulouse (35 min avec bientot l'A69), vous profiterez du dynamisme du centre du village, de ses commerces, activités et écoles mais aussi d'un environnement verdoyant propice aux activités extérieures et riche d'histoire. Cette jolie maison de village est composée de 3 niveaux ou vous découvrirez : - au RDC, après avoir passé la superbe porte d'entrée, la pièce de vie traversante disposant d'une cuisine semi ouverte sur le séjour. Ce dernier donne accès à une agréable terrasse couverte et au jardin. - au 1er étage le pallier dessert une salle de bain avec WC et 3 chambres de 19,15 et 11 m² - au 2ème étage l'escalier ouvre sur un très lumineux et cosy espace de 38 m² qui donne accès une autre chambre de 12 m² et à une salle d'eau avec WC. Profitant d'une pompe à chaleur air / eau, d'une très bonne isolation et de doubles vitrages, elle est non seulement agréable mais peu énergivore : DPE C ! Un havre de paix où il fait bon vivre au quotidien alors ne manquez pas l'opportunité de la visiter et d'y faire votre nid ! ,-) Honoraires d'agence à la charge du vendeur. Information d'affichage énergétique sur ce bien : classe ENERGIE C indice 114 et classe CLIMAT A indice 3. Les informations sur les risques auxquels ce bien est exposé, y compris l'obligation légale de débroussaillement, sont disponibles sur le site Géorisques : http://www.georisques.gouv.fr. La présente annonce immobilière a été rédigée sous la responsabilité éditoriale de M Yann Thomas mandataire indépendant en immobilier (sans détention de fonds), agent commercial de la SAS I@D France immatriculé au RSAC de TOULOUSE sous le numéro 808762553, titulaire de la carte de démarchage immobilier pour le compte de la société I@D France SAS.
Détails de l'annonce
Localisation
Ville
Vielmur-sur-Agout
Pays
FR
Diagnostics / Énergie
Diagnostic DPE
114
Diagnostic GES
3
Surfaces / Pièces / Composition
Nombre d’étages
3
Chauffage et diagnostics
Diagnostic de performance énergétique (DPE)
a
b
c
d
e
f
g
Indice d'émission de gaz à effet de serre (GES)
a
b
c
d
e
f
g
