Vente Terrain à bâtir 1 023 m²
Type
Bien immobilierTarif
61 000 €Chambres
0Salles de bain
0Vente Terrain à bâtir 1 023 m²
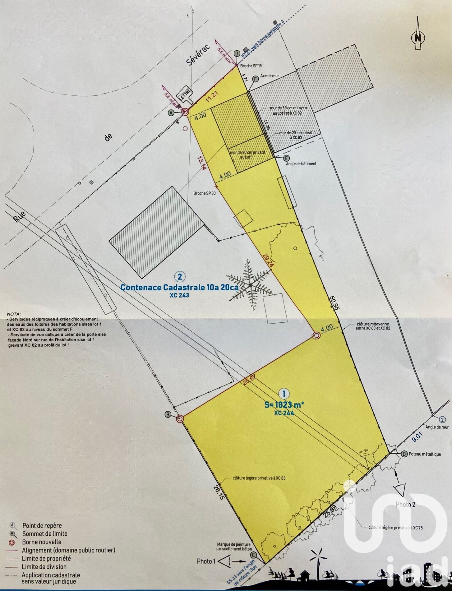
Iad France - Julien Hidoux vous propose : En exclusivité, situé en campagne, terrain à bâtir d'une surface d’environ 1023 m², avec une façade d’environ 26 mètres. Le terrain comprend une bâtisse en pierre d’environ 40 m² au sol ainsi qu’un garage en parpaing d’environ 24 m². Le bien est desservi en EAU, EDF et télécom en bordure de route. (Assainissement individuel à prévoir) Exposition sud sur l’arrière, offrant un ensoleillement optimal. Le terrain est libre de constructeur, laissant la possibilité de réaliser le projet de votre choix. Zone AH1 - CES 30% - 307 m² au sol (Bâtisse + garage environ 75 m² donc reste 230² environ) Terrain rectangulaire au fond environ 650 m² - 5 Kms du bourg Ligne haute tension 20 000 volts Honoraires d'agence à la charge du vendeur. Bien non soumis au DPE. Les informations sur les risques auxquels ce bien est exposé, y compris l'obligation légale de débroussaillement, sont disponibles sur le site Géorisques : http://www.georisques.gouv.fr. La présente annonce immobilière a été rédigée sous la responsabilité éditoriale de M Julien Hidoux mandataire indépendant en immobilier (sans détention de fonds), agent commercial de la SAS I@D France immatriculé au RSAC de SAINT NAZAIRE sous le numéro 983773888, titulaire de la carte de démarchage immobilier pour le compte de la société I@D France SAS.
Détails de l'annonce
Localisation
Ville
Missillac
Pays
FR
Surfaces / Pièces / Composition
Nombre d’étages
Chauffage et diagnostics
Diagnostic de performance énergétique (DPE)
a
b
c
d
e
f
g
Indice d'émission de gaz à effet de serre (GES)
a
b
c
d
e
f
g
