Trouver...

Language: FR

Devise: EUR

Type
Bien immobilier
Tarif
317 000 €
Chambres
2
Salles de bain
0

Vente Appartement 3 pièces

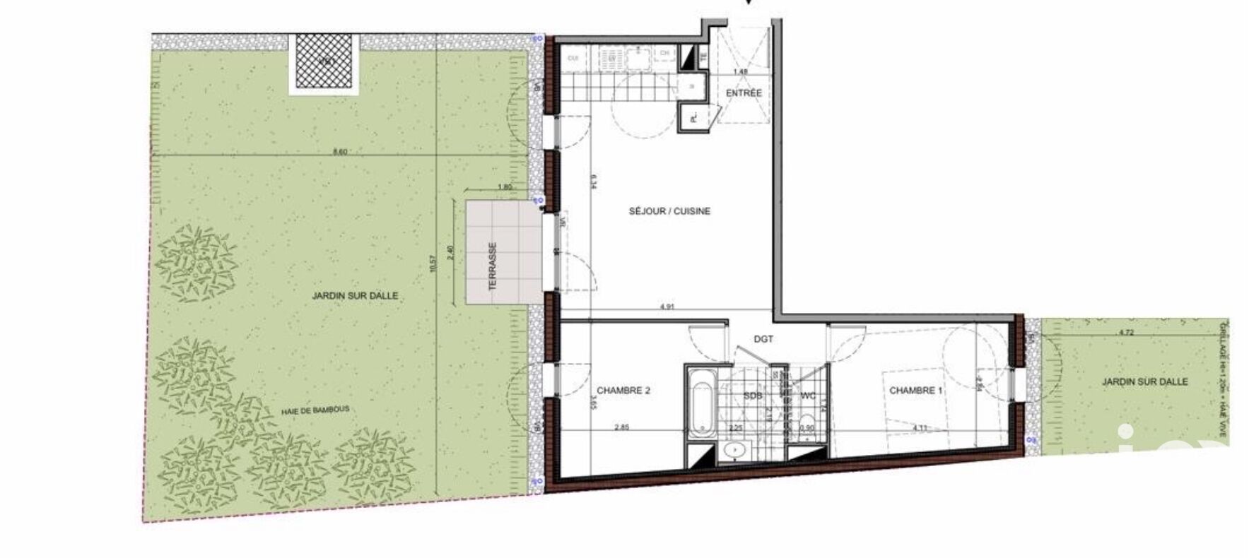
Iad France - Barbara Pliquet vous propose : En exclusivité, superbe appartement de type T3 avec jardin privatif niché au cOEur de Jouars-Pontchartrain, commune à proximité de Montfort-l’Amaury. Situé dans une résidence de standing de 2023, ce bien offre un cadre de vie idéal alliant confort moderne, style élégant dans un environnement calme, à proximité de toutes les commodités. L'entrée vous amène sur la pièce de vie dôtée d'un séjour lumineux ouvert sur sa cuisine aménagée et équipée. Un couloir dessert l'espace nuit composé de 2 chambres, d'une salle de bain contemporaine et d'un WC indépendant. Vous serez séduit par la luminosité et l'agencement de cet appartement aux équipements modernes pour un confort optimal. De plus, vous disposez également d'un agréable jardin privatif entièrement clôturé, exposé sud avec terrasse vous permettant de profiter de l'extérieur. Un second jardin est accessible depuis une des chambre, permettant de profiter de plusieurs exposition. Ce bien se complète de 2 places de parking en sous-sol. Ne manquez pas l'opportunité de vivre dans ce cadre de vie apaisant, au sein d'une résidence moderne et sécurisée, offrant confort, qualité de vie et sérénité. Aucun travaux à prévoir. Contactez-moi pour organiser une visite. La presente annonce immobiliere vise 2 lots situés dans une copropriété de 101 lots au total et faisant l'objet d'une ou plusieurs procédures en cours citée à l'article L. 721-1 du code de la construction et de l'habitation. Montant moyen mensuel de charges déclaré par le vendeur : 150€ par mois (soit 1800 € annuel). Honoraires d'agence à la charge du vendeur. Information d'affichage énergétique sur ce bien : classe ENERGIE C indice 64 et classe CLIMAT C indice 13. Les informations sur les risques auxquels ce bien est exposé, y compris l'obligation légale de débroussaillement, sont disponibles sur le site Géorisques : http://www.georisques.gouv.fr. La présente annonce immobilière a été rédigée sous la responsabilité éditoriale de Mme Barbara Pliquet mandataire indépendant en immobilier (sans détention de fonds), agent commercial de la SAS I@D France immatriculé au RSAC de VERSAILLES sous le numéro 978316958, titulaire de la carte de démarchage immobilier pour le compte de la société I@D France SAS.

Détails de l'annonce

Localisation

Ville
Jouars-Pontchartrain
Pays
FR

Diagnostics / Énergie

Diagnostic DPE
64
Diagnostic GES
13

Surfaces / Pièces / Composition

Nombre d’étages
3

Chauffage et diagnostics

Diagnostic de performance énergétique (DPE)
a
b
c
d
e
f
g
Indice d'émission de gaz à effet de serre (GES)
a
b
c
d
e
f
g
Rappelez-moi
Nos partenaires