Vente Appartement 4 pièces
Type
Bien immobilierTarif
326 000 €Chambres
0Salles de bain
0Vente Appartement 4 pièces
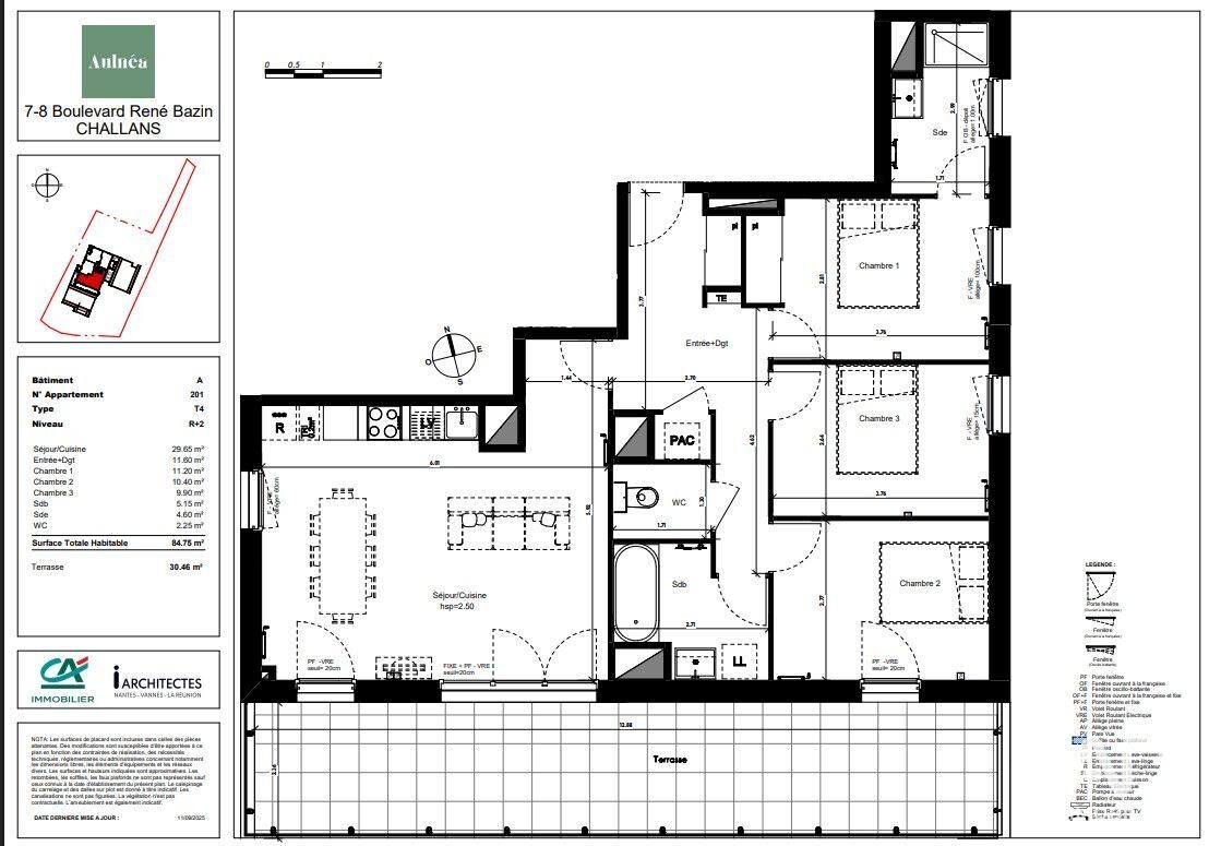
Iad France - Sandra Redureau (06 64 39 00 18) vous propose : Au COEur de challans, à proximité immédiate des commerces. Appartement T4 de 85 m² environ au 2ème étage avec terrasse de 30 m² environ Composé d'une pièce de vie avec cuisine, lumineuse avec accès terrasse plein sud, trois chambres dont une suite parentale avec salle d'eau, une salle de bain, wc. Parking aérien privatif. Livraison 2028 Programme neuf en VEFA Honoraires d’agence à la charge du vendeur. Bien non soumis au DPE. Les informations sur les risques auxquels ce bien est exposé sont disponibles sur le site Géorisques : www.georisques.gouv.fr. La présente annonce immobilière a été rédigée sous la responsabilité éditoriale de Mlle Sandra Redureau EI (ID 61415), mandataire indépendant en immobilier (sans détention de fonds), agent commercial de la SAS I@D France immatriculé au RSAC de NANTES sous le numéro 903108710, titulaire de la carte de démarchage immobilier pour le compte de la société I@D France SAS. Retrouvez tous nos biens sur notre site internet. www.iadfrance.fr.
Détails de l'annonce
Localisation
Ville
Challans
Pays
FR
Surfaces / Pièces / Composition
Nombre d’étages
Chauffage et diagnostics
Diagnostic de performance énergétique (DPE)
a
b
c
d
e
f
g
Indice d'émission de gaz à effet de serre (GES)
a
b
c
d
e
f
g
