Trouver...

Language: FR

Devise: EUR

Type
Bien immobilier
Tarif
230 000 €
Chambres
2
Salles de bain
0

Vente Appartement 3 pièces

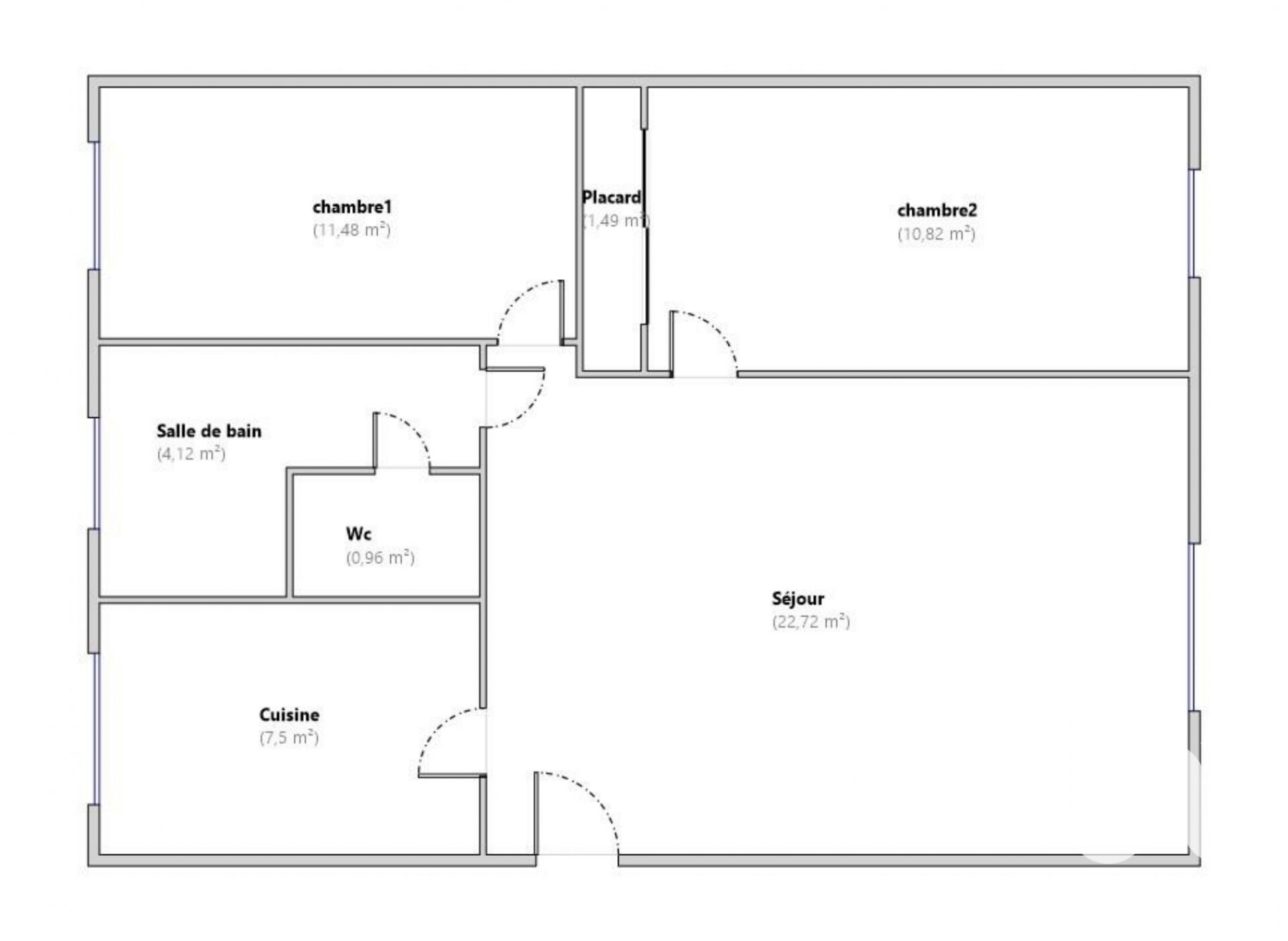
Iad France - Alexandre Cozon vous propose : SOUS OFFRE ACCEPTEE Au cOEur du 7ᵉ arrondissement, au 54 rue André Bollier, à deux pas de Jean-Jaurès, découvrez ce T3 traversant Nord–Sud, situé au 5ᵉ et dernier étage sans ascenseur. Un appartement où la lumière circule toute la journée, sans vis-à-vis, et où le calme surprend en pleine ville. Un espace de vie agréable et évolutif : - Séjour de 23 m², lumineux, vue dégagée, atmosphère paisible. - Cuisine séparée côté Sud, idéale pour créer une pièce de vie > 30 m². - Deux chambres d'environ 11 m², lumineuses et équilibrées. - Salle de bains à moderniser, WC séparés. - Cave privative. Atouts clés : - Dernier étage : aucune nuisance au-dessus, belle luminosité, vraie intimité. - Travaux récents (2024) : double vitrage, peintures, électricité, isolation des plafonds. - Copropriété à taille humaine, charges maîtrisées. - Isolation des combles décidée et programmée : gain énergétique attendu (DPE E → D). - Cuisine + SDB personnalisables, budget estimatif fouchette haute 20 000 € (avec matériaux haut de gamme et électroménager compris). Un emplacement prisé : Jean-Jaurès / Debourg - Métro B à moins de 10 min. - Tram T1 à 5 min, T6 à 10 min. - ENS, EM Lyon, commerces, écoles et restaurants accessibles à pied. En résumé : Un T3 lumineux, calme et sain, parfaitement situé au 54 rue André Bollier, prêt à accueillir un premier achat serein et durable au cOEur de Lyon 7. La presente annonce immobiliere vise 2 lots situés dans une copropriété de 32 lots au total et ne faisant l'objet d'aucune procédure en cours citée à l'article L. 721-1 du code de la construction et de l'habitation. Montant moyen mensuel de charges déclaré par le vendeur : 78.1€ par mois (soit 937.2 € annuel). Honoraires d'agence à la charge du vendeur. Information d'affichage énergétique sur ce bien : classe ENERGIE E indice 256 et classe CLIMAT E indice 58. Les informations sur les risques auxquels ce bien est exposé, y compris l'obligation légale de débroussaillement, sont disponibles sur le site Géorisques : http://www.georisques.gouv.fr. La présente annonce immobilière a été rédigée sous la responsabilité éditoriale de M Alexandre Cozon mandataire indépendant en immobilier (sans détention de fonds), agent commercial de la SAS I@D France immatriculé au RSAC de Lyon sous le numéro 985111954, titulaire de la carte de démarchage immobilier pour le compte de la société I@D France SAS.

Détails de l'annonce

Localisation

Ville
Lyon
Pays
FR

Diagnostics / Énergie

Diagnostic DPE
256
Diagnostic GES
58

Surfaces / Pièces / Composition

Nombre d’étages
5
Étage
5

Chauffage et diagnostics

Diagnostic de performance énergétique (DPE)
a
b
c
d
e
f
g
Indice d'émission de gaz à effet de serre (GES)
a
b
c
d
e
f
g
Rappelez-moi
Nos partenaires