Vente Appartement 3 pièces
Type
Bien immobilierTarif
170 000 €Chambres
2Salles de bain
0Vente Appartement 3 pièces
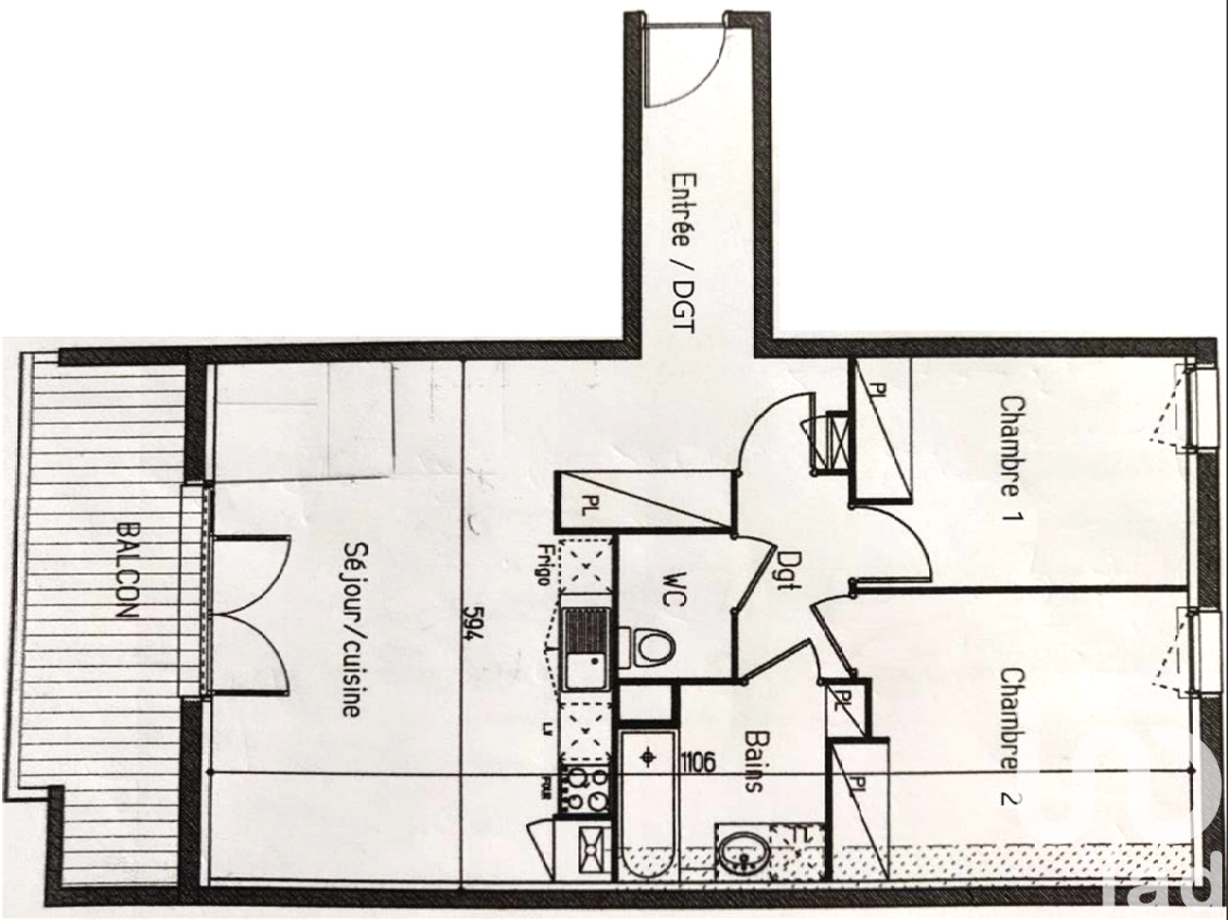
Iad France - Agnès Bessou vous propose : Exclusivité : Appartement T3 traversant de 69 m² au 3ième étage avec une grande terrasse dans résidence récente. Il se compose d’une entrée avec placards, d’un séjour avec une cuisine équipée donnant sur la terrasse. Dans l’espace nuit : 2 chambres avec rangements, une salle d’eau récente, des toilettes séparées avec un coin buanderie. 1 place de parking en sous-sol. Chauffage au gaz individuel. À 2 pas des accès métro ligne B et lignes de bus 26 et 60, des commerces et des services, du périphérique sortie 12…Informations et autres photos disponibles sur I@D France. c – Référence 1828932 - Agnès Bessou, conseillère immobilier indépendante La presente annonce immobiliere vise 2 lots situés dans une copropriété de 224 lots au total et ne faisant l'objet d'aucune procédure en cours citée à l'article L. 721-1 du code de la construction et de l'habitation. Montant moyen mensuel de charges déclaré par le vendeur : 110€ par mois (soit 1320 € annuel). Honoraires d'agence à la charge du vendeur. Information d'affichage énergétique sur ce bien : classe ENERGIE C indice 77 et classe CLIMAT C indice 14. Les informations sur les risques auxquels ce bien est exposé, y compris l'obligation légale de débroussaillement, sont disponibles sur le site Géorisques : http://www.georisques.gouv.fr. La présente annonce immobilière a été rédigée sous la responsabilité éditoriale de Mme Agnès Bessou mandataire indépendant en immobilier (sans détention de fonds), agent commercial de la SAS I@D France immatriculé au RSAC de TOULOUSE sous le numéro 752835967, titulaire de la carte de démarchage immobilier pour le compte de la société I@D France SAS.
Détails de l'annonce
Localisation
Ville
Toulouse
Pays
FR
Diagnostics / Énergie
Diagnostic DPE
77
Diagnostic GES
14
Surfaces / Pièces / Composition
Nombre d’étages
4
Étage
3
Chauffage et diagnostics
Diagnostic de performance énergétique (DPE)
a
b
c
d
e
f
g
Indice d'émission de gaz à effet de serre (GES)
a
b
c
d
e
f
g
