Vente Terrain à bâtir 366 m²
Type
Bien immobilierTarif
118 000 €Chambres
0Salles de bain
0Vente Terrain à bâtir 366 m²
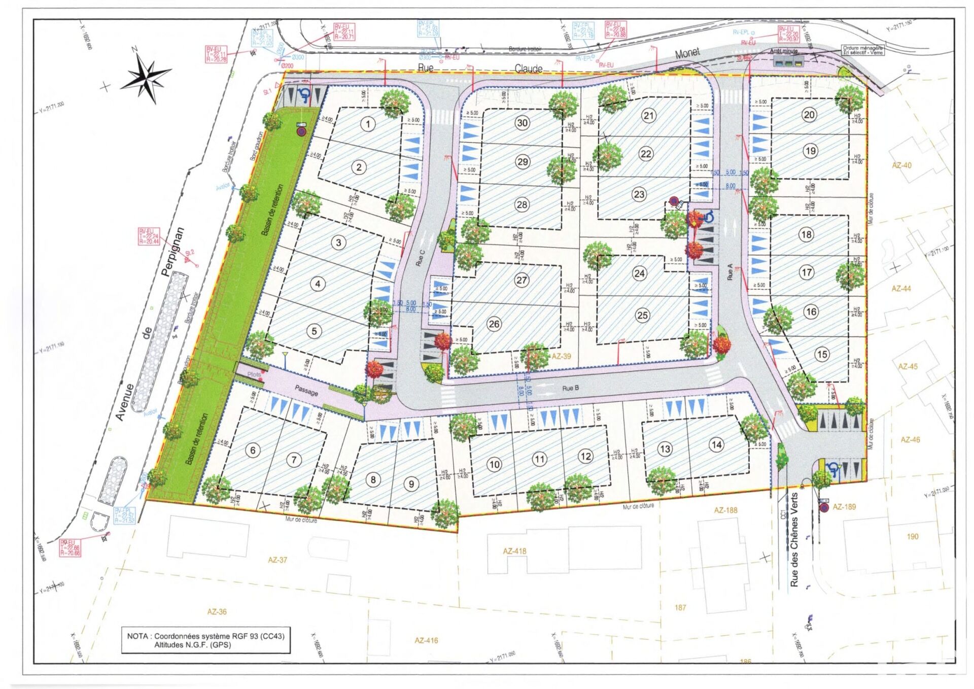
Iad France - David Giralt vous propose : Nouveauté TERRAIN PIA Lotissement « le STANDING « Opportunité à saisir, je vous envoie par mail le plan du lotissement, les parcelles disponibles ainsi que le règlement du lotissement, afin de vous positionner dessus. Immobilisation de la parcelle = 1000e 30 Terrains constructibles de 229 m² à 472 m². DE 315e / M2 à 353e / M2 Magnifique parcelle en 2 et 3 faces, constructibles viabilisées, possibilités de R + 1 hauteur max de 10m sur toutes les parcelles, clôture de 1m80 sur le voisinage, 1m50 sur la rue. CES coefficient d'emprise au sol = 120 m² max environ selon la taille de la parcelle. SDP surface de plancher = 220 m² max environ selon la taille de la parcelle. David Giralt iad France, votre conseiller Immobilier sur PIA et alentours. Avis de valeur OFFERT dans tout les Pyrénées-Orientales. Me contacter uniquement pour plus d'informations, exclusivité David Giralt iad France, agence et particulier ne pas déranger les propriétaires, entièrement ouvert au partage d'affaire, merci de votre compréhension. Honoraires d'agence à la charge du vendeur. Bien non soumis au DPE. Les informations sur les risques auxquels ce bien est exposé, y compris l'obligation légale de débroussaillement, sont disponibles sur le site Géorisques : http://www.georisques.gouv.fr. La présente annonce immobilière a été rédigée sous la responsabilité éditoriale de M David Giralt mandataire indépendant en immobilier (sans détention de fonds), agent commercial de la SAS I@D France immatriculé au RSAC de PERPIGNAN sous le numéro 900486309, titulaire de la carte de démarchage immobilier pour le compte de la société I@D France SAS.
Détails de l'annonce
Localisation
Ville
Pia
Pays
FR
Surfaces / Pièces / Composition
Nombre d’étages
Chauffage et diagnostics
Diagnostic de performance énergétique (DPE)
a
b
c
d
e
f
g
Indice d'émission de gaz à effet de serre (GES)
a
b
c
d
e
f
g
