Strategique Courbevoie
Type
Bien immobilierTarif
527 000 €Chambres
2Salles de bain
0Strategique Courbevoie
Courbevoie, autrefois berceau d’industries emblématiques telles que Guerlain et Vélosolex, s’impose aujourd’hui comme un pôle dynamique accueillant de grandes entreprises internationales et des établissements supérieurs (Léonard de Vinci, Paris X Nanterre…).
À proximité directe de La Défense, cette résidence neuve constitue un choix d’investissement particulièrement judicieux. Située à quelques minutes à pied du premier quartier d’affaires européen, elle attire naturellement une clientèle diversifiée : cadres, jeunes actifs, mais aussi familles en quête d’un logement de qualité dans un environnement sécurisé. L’excellente desserte en transports (Transilien, RER A et E, Métro ligne 1 et futur métro 15) renforce l’attractivité durable de ce bien.
Dans un quartier privilégié alliant tranquillité résidentielle et commodités urbaines, la résidence répond parfaitement aux attentes d’une clientèle exigeante. Le marché immobilier dynamique de Courbevoie connaît une progression constante, soutenue par une municipalité proactive. Que vous envisagiez une location meublée ou vide, ce secteur recherché vous assure un rendement solide et une valorisation sûre de votre investissement.
Architecture noble avec pierre
Parc paysager de 4000 m²
Doubles orientations des appartements
Loggias, balcons et terrasses
Connexion directe à La Défense, à 10 min à pied
Salle de sport, cabinet médical et brasserie
Détails de l'annonce
Finances / Mandat / Références
Charges
€
Dépôt de garantie
€
Localisation
Ville
Courbevoie
Pays
FR
Diagnostics / Énergie
Diagnostic DPE
71
Diagnostic GES
7
Chauffage / Énergie
Chauffage
Central
Accès
Collectif
Type de chauffage
6
Surfaces / Pièces / Composition
Surface (m²)
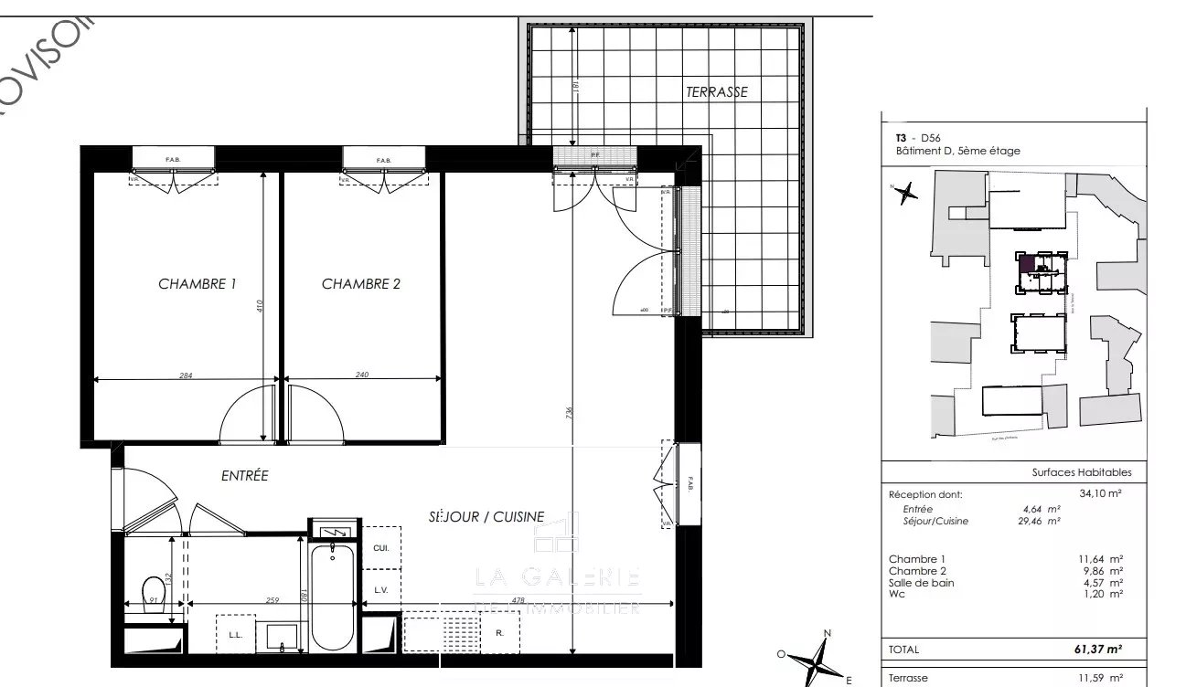
61.37 m²
Nombre de pièces
3
Nombre de chambres
2
Étage
5
Caractéristiques / Équipements
Terrain viabilisé
Chauffage et diagnostics
Diagnostic de performance énergétique (DPE)
a
b
c
d
e
f
g
Indice d'émission de gaz à effet de serre (GES)
a
b
c
d
e
f
g
