Maison de 7 pièces, 123 m² - Plonévez-Porzay 29550
Type
Bien immobilierTarif
160 000 €Chambres
4Salles de bain
0Maison de 7 pièces, 123 m² - Plonévez-Porzay 29550
En exclusivité – Florian Dorval vous présente cette charmante maison idéalement située au cœur de Plonévez-Porzay, à seulement 3 km des magnifiques plages de la baie de Douarnenez, 8 km de Douarnenez et 18 km de Quimper.
Maison d’habitation avec studio indépendant (ou salon d’été) et garage.
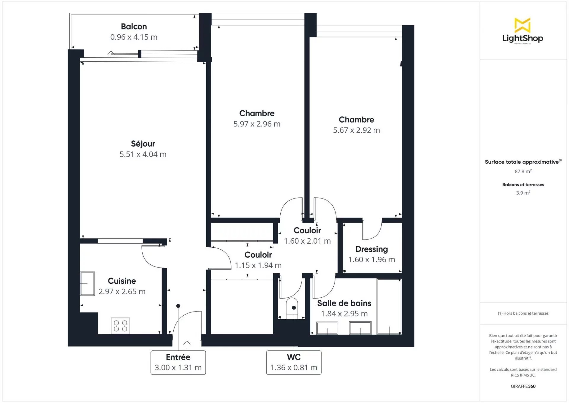
D’une surface habitable de 123 m², cette maison mitoyenne, construite en 1950, offre un cadre de vie agréable et fonctionnel, sur un terrain d’environ 100 m².
Elle se compose de 7 pièces réparties sur deux niveaux.
Rez-de-chaussée :
- Studio d’environ 30 m², comprenant une cuisine, une douche et des WC indépendants, avec entrée privative et accès au jardinet et à son abri de jardin (actuelle chaufferie).
- Grand garage intérieur d’environ 30 m², pouvant accueillir deux véhicules, avec possibilité d’aménagement afin d’agrandir le studio.
Idéal pour un revenu locatif, en location saisonnière ou à l’année.
1er étage :
- Séjour spacieux et lumineux de 35 m².
- Trois chambres, dont une chambre double en enfilade. Une quatrième chambre pour enfant est possible.
- Cuisine ouverte, aménagée et équipée.
- Salle d’eau et des WC indépendants.
Deux places de stationnement supplémentaires situées en face de la maison, sur des emplacements communs.
Caractéristiques techniques :
- Chauffage individuel au fioul (chaudière non fonctionnelle).
- Isolation partielle.
- Toiture en ardoises naturelles avec crochets inox côté rue et toiture amiantée côté jardinet.
- Menuiseries PVC double vitrage.
- Deux VMC, assurant confort et renouvellement de l’air.
- Assainissement au tout-à-l’égout conforme.
Cette maison bénéficie d’un emplacement central, avec de nombreux services accessibles à pied :
- Deux arrêts de bus.
- École maternelle et école élémentaire.
- Commerces de proximité : supérette, deux boulangeries, pharmacie, maison médicale, garage, etc.
- Équipements sportifs : terrain de football et courts de tennis.
Vous souhaitez visiter ou obtenir plus d’informations ?
Contactez dès à présent Florian Dorval, votre agent de proximité chez (LF immo).
Honoraires à la charge de l’acquéreur.
Prix hors honoraires d'agence 152 500 €.
Prix honoraires inclus 160 000 €.
Annonce publiée par Florian Dorval (EI) votre agent commercial en immobilier LF immo à Cast, 29150 immatriculé au RSAC de Quimper sous le n°851 300 202 000 13. Consultez nos tarifs sur le site LF immo.
Les informations sur les risques auxquels ce bien est exposé sont disponibles sur le site Géorisques : www.georisques.gouv.fr.
Maison d’habitation avec studio indépendant (ou salon d’été) et garage.
D’une surface habitable de 123 m², cette maison mitoyenne, construite en 1950, offre un cadre de vie agréable et fonctionnel, sur un terrain d’environ 100 m².
Elle se compose de 7 pièces réparties sur deux niveaux.
Rez-de-chaussée :
- Studio d’environ 30 m², comprenant une cuisine, une douche et des WC indépendants, avec entrée privative et accès au jardinet et à son abri de jardin (actuelle chaufferie).
- Grand garage intérieur d’environ 30 m², pouvant accueillir deux véhicules, avec possibilité d’aménagement afin d’agrandir le studio.
Idéal pour un revenu locatif, en location saisonnière ou à l’année.
1er étage :
- Séjour spacieux et lumineux de 35 m².
- Trois chambres, dont une chambre double en enfilade. Une quatrième chambre pour enfant est possible.
- Cuisine ouverte, aménagée et équipée.
- Salle d’eau et des WC indépendants.
Deux places de stationnement supplémentaires situées en face de la maison, sur des emplacements communs.
Caractéristiques techniques :
- Chauffage individuel au fioul (chaudière non fonctionnelle).
- Isolation partielle.
- Toiture en ardoises naturelles avec crochets inox côté rue et toiture amiantée côté jardinet.
- Menuiseries PVC double vitrage.
- Deux VMC, assurant confort et renouvellement de l’air.
- Assainissement au tout-à-l’égout conforme.
Cette maison bénéficie d’un emplacement central, avec de nombreux services accessibles à pied :
- Deux arrêts de bus.
- École maternelle et école élémentaire.
- Commerces de proximité : supérette, deux boulangeries, pharmacie, maison médicale, garage, etc.
- Équipements sportifs : terrain de football et courts de tennis.
Vous souhaitez visiter ou obtenir plus d’informations ?
Contactez dès à présent Florian Dorval, votre agent de proximité chez (LF immo).
Honoraires à la charge de l’acquéreur.
Prix hors honoraires d'agence 152 500 €.
Prix honoraires inclus 160 000 €.
Annonce publiée par Florian Dorval (EI) votre agent commercial en immobilier LF immo à Cast, 29150 immatriculé au RSAC de Quimper sous le n°851 300 202 000 13. Consultez nos tarifs sur le site LF immo.
Les informations sur les risques auxquels ce bien est exposé sont disponibles sur le site Géorisques : www.georisques.gouv.fr.
À proximité
Recherche des commodités à proximité...
Détails de l'annonce
Caractéristiques / Équipements
Nombre de parkings
3
Mandat exclusif
Oui
Localisation
Ville
Plonévez-Porzay
Pays
France
Adresse
16 rue de la presqu'île
Diagnostics / Énergie
Diagnostic DPE
E
Diagnostic GES
E
Consommation en énergie (kWh/m²/an)
242
Émissions de GES
64
Version du DPE
DPE version 07-2021
DPE coût min. estimé
2240.0
DPE coût max. estimé
3110.0
DPE année de référence conso
01/01/2021
Finances / Mandat / Références
Honoraires vendeur
4.92 €
Date du mandat
Dorval
Identifiant agence
LFIMMO
Prénom mandataire
Florian
Raison sociale mandataire
Auto-entrepreneur
CP mandataire
29150
Ville mandataire
Cast
Téléphone mandataire
0665298122
Code négociateur
116309
Identifiant technique (code)
fr059025
Honoraires à la charge de
N/A €
Prix hors honoraires acquéreur
152500.0 €
Surfaces / Pièces / Composition
Surface terrain (m²)
109.0 m²
Nombre de salles d’eau
2
Descriptif / Texte de l’annonce
Date de disponibilité
25/06/2024
Chauffage / Énergie
Type de chauffage
fuel
Cuisine
Type de cuisine
équipée
Photos / Médias / Visites
Contact à afficher
Florian Dorval
Chauffage et diagnostics
Diagnostic de performance énergétique (DPE)
a
b
c
d
e
f
g
Indice d'émission de gaz à effet de serre (GES)
a
b
c
d
e
f
g
