Corps de ferme à rénover
Type
Bien immobilierTarif
63 000 €Chambres
3Salles de bain
0Corps de ferme à rénover
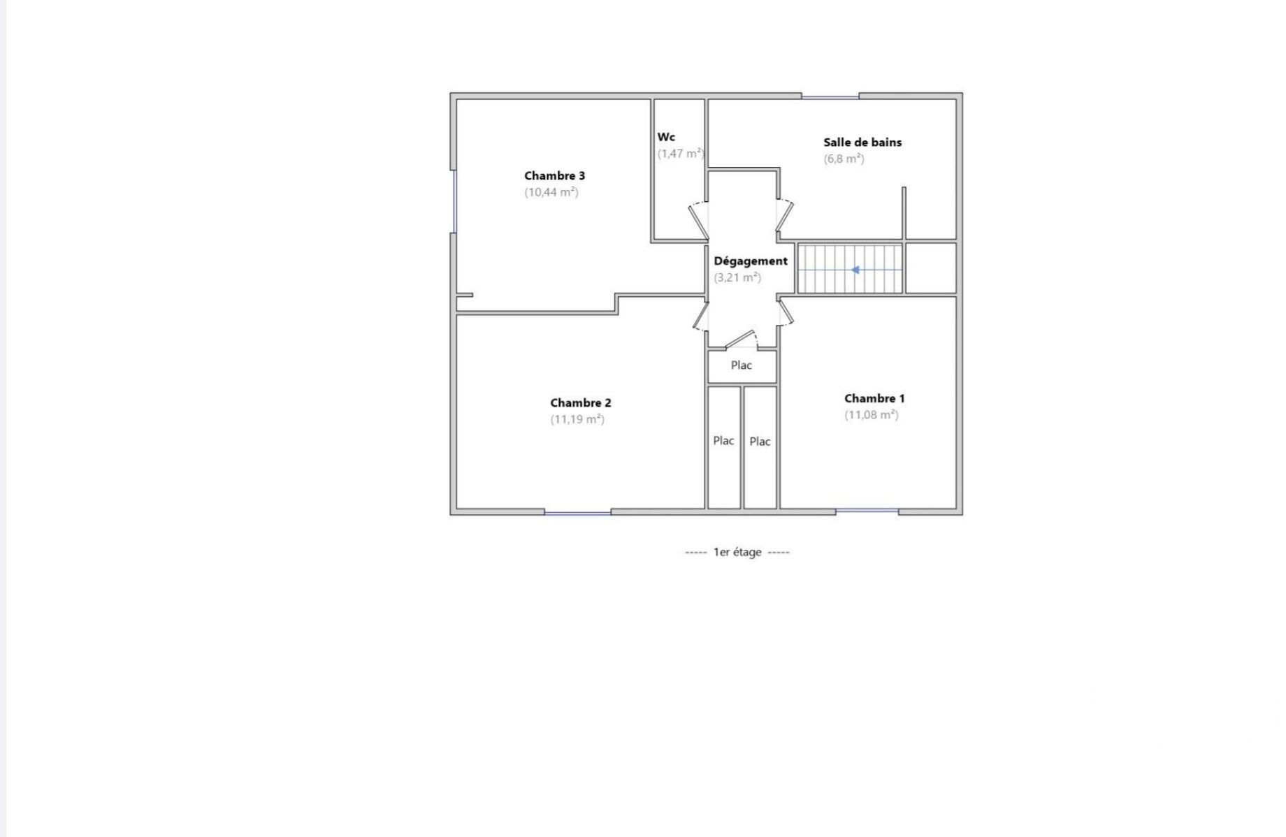
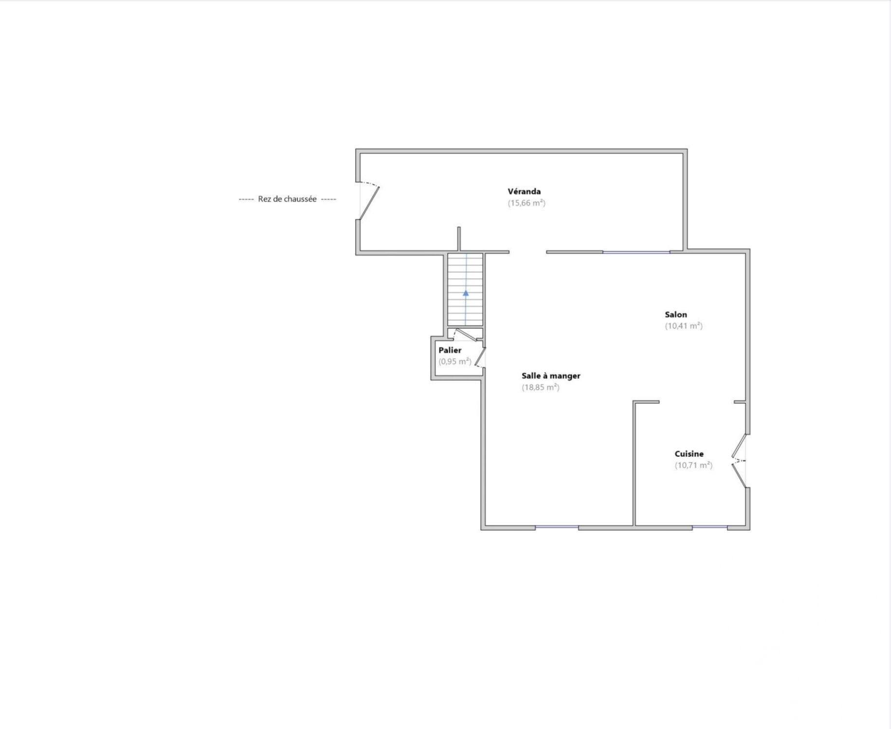
Sur 821 mètres carrés de terrain environ, venez découvrir cet ancien corps de ferme et ses annexes, son jardin, ses énormes possibilités d'aménagement...A rénover intégralement, il offre en contrepartie de vastes volumes et une grande parcelle en plein cœur du village.
Annonce publiée par Martine Cronmuller (EI) votre agent commercial en immobilier LF immo à Woerth, 67360 immatriculé au RSAC de Strasbourg sous le n°753 770 510 000 18. Consultez nos tarifs sur le site LF immo.
Les informations sur les risques auxquels ce bien est exposé sont disponibles sur le site Géorisques : www.georisques.gouv.fr.
Annonce publiée par Martine Cronmuller (EI) votre agent commercial en immobilier LF immo à Woerth, 67360 immatriculé au RSAC de Strasbourg sous le n°753 770 510 000 18. Consultez nos tarifs sur le site LF immo.
Les informations sur les risques auxquels ce bien est exposé sont disponibles sur le site Géorisques : www.georisques.gouv.fr.
À proximité
Recherche des commodités à proximité...
Détails de l'annonce
Caractéristiques / Équipements
Cave
Oui
Nombre de parkings
10
Mandat exclusif
Oui
Localisation
Ville
Dieffenbach-Lès-Wœrth
Pays
France
Adresse
3 rue de Gunstett
Finances / Mandat / Références
Honoraires vendeur
€
Date du mandat
Cronmuller
Identifiant agence
LFIMMO
Prénom mandataire
Martine
Raison sociale mandataire
Auto-entrepreneur
CP mandataire
67360
Ville mandataire
Woerth
Téléphone mandataire
0663227715
Code négociateur
33483
Identifiant technique (code)
fr071352
Honoraires à la charge de
2 €
Prix hors honoraires acquéreur
63000.0 €
Surfaces / Pièces / Composition
Surface terrain (m²)
821.0 m²
Chauffage / Énergie
Type de chauffage
mixte
Cuisine
Type de cuisine
coin cuisine
Photos / Médias / Visites
Contact à afficher
Martine Cronmuller
Diagnostics / Énergie
Version du DPE
DPE version 07-2021
Chauffage et diagnostics
Diagnostic de performance énergétique (DPE)
a
b
c
d
e
f
g
Indice d'émission de gaz à effet de serre (GES)
a
b
c
d
e
f
g
