Vente Maison traditionnelle 5 pièces
Type
Bien immobilierTarif
250 000 €Chambres
3Salles de bain
0Vente Maison traditionnelle 5 pièces
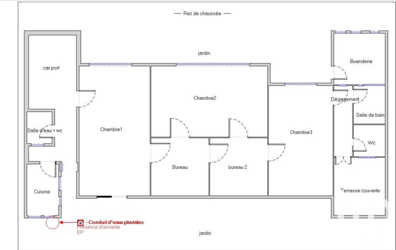
Iad France - Ophélie Damase vous propose : Charmante maison traditionnelle avec jardin aux Abymes (Le Raizet) Découvrez cette ravissante maison traditionnelle, offrant un cadre de vie chaleureux et confortable pour toute la famille. Construite en 1976, cette propriété a été bien entretenue et est en bon état général, prête à accueillir de nouveaux résidents en quête de tranquillité. La maison s'étend sur une surface totale de 139 m², avec un terrain spacieux de 440 m² offrant un jardin arboré où petits et grands pourront profiter de l'extérieur en toute quiétude. L'aménagement intérieur comprend 5 pièces, dont 3 chambres, une pièce pouvant servir de bureau, une salle de bain, une salle d'eau et un WC indépendant, ainsi qu'un espace de vie lumineux comprenant un séjour de 28 m². La cuisine est indépendante à la maison, elle n'est pas équipée. Elle vous offrira ainsi la possibilité de la personnaliser selon vos goûts et besoins. L'atout majeur de cette maison est sa configuration de plain-pied, offrant une accessibilité facile à tous les espaces sans avoir à monter d'escaliers. De plus, vous pourrez profiter d'une terrasse et d’un jardin sans vis-à-vis pour vos moments de détente en plein air. Située dans un quartier calme, cette maison offre un cadre de vie paisible tout en étant proche des commodités du quotidien. Des travaux de rafraîchissement / modernisation sont à prévoir dans la maison Ne manquez pas cette opportunité d'acquérir une maison traditionnelle pleine de charme. Contactez-moi dès maintenant pour organiser une visite et laissez-vous séduire par ce bien unique. Honoraires d'agence à la charge du vendeur. Bien non soumis au DPE. Les informations sur les risques auxquels ce bien est exposé, y compris l'obligation légale de débroussaillement, sont disponibles sur le site Géorisques : http://www.georisques.gouv.fr. La présente annonce immobilière a été rédigée sous la responsabilité éditoriale de Mme Ophélie Damase mandataire indépendant en immobilier (sans détention de fonds), agent commercial de la SAS I@D France immatriculé au RSAC de VERSAILLES sous le numéro 889204590, titulaire de la carte de démarchage immobilier pour le compte de la société I@D France SAS.
Détails de l'annonce
Localisation
Ville
Les Abymes
Pays
FR
Chauffage et diagnostics
Diagnostic de performance énergétique (DPE)
a
b
c
d
e
f
g
Indice d'émission de gaz à effet de serre (GES)
a
b
c
d
e
f
g
