Vente Appartement 2 pièces
Type
Bien immobilierTarif
330 000 €Chambres
1Salles de bain
0Vente Appartement 2 pièces
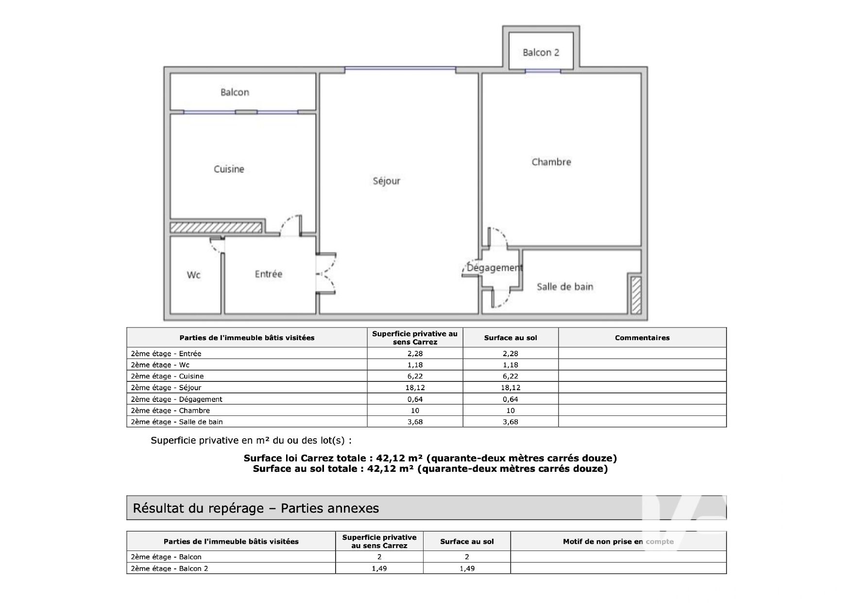
Iad France - Julien Siegfried vous propose : EN EXCLUSIVITÉ, UN APPARTEMENT 2 PIÈCES EN PLEIN CŒUR DE BÉCON LES BRUYÈRES - ENTIEREMENT SUR COUR - DPE : D Au cOEur du très recherché quartier de Bécon-les-Bruyères, cet appartement donnant sur l’arrière du bâtiment, de 2 pièces, 42 m², situé au 2ᵉ étage d’une résidence bien entretenue et sécurisée, séduira les amateurs de confort et de calme. À deux pas des commerces, des transports et des espaces verts, il offre un cadre de vie agréable, alliant dynamisme et tranquillité. Depuis l’entrée, vous accédez sur votre gauche aux WC séparés pour plus de confort, en face à la cuisine indépendante de plus de 6 m² avec son balcon, et sur votre droite au séjour lumineux de plus de 18 m² qui promet une atmosphère conviviale et chaleureuse. Ensuite, un petit dégagement vous mène à la spacieuse chambre équipée de grands rangements, et, là aussi, d'un balcon, permettant de profiter pleinement de nuits paisibles. Pour finir la visite, la salle de bains complète l’ensemble, offrant tout le confort nécessaire. Cet appartement bénéficie d’un agencement optimisé, sans perte de place, et d’une belle luminosité tout au long de la journée grâce à son exposition Sud-Est. Idéal pour un premier achat ou un investissement locatif, il constitue une opportunité rare dans un secteur prisé. Vous noterez l’excellent DPE en D et qu’une cave saine complète ce bien pour plus de rangement. Une visite s’impose ! Vous cherchez un appartement qui combine emplacement premium, tranquillité et rentabilité ? Ne laissez pas passer cette opportunité. Contactez-moi dès maintenant pour en discuter et organiser une visite avant qu’il ne soit trop tard ! La presente annonce immobiliere vise 2 lots situés dans une copropriété de 61 lots au total et ne faisant l'objet d'aucune procédure en cours citée à l'article L. 721-1 du code de la construction et de l'habitation. Montant moyen mensuel de charges déclaré par le vendeur : 217.01€ par mois (soit 2604.12 € annuel). Honoraires d'agence à la charge du vendeur. Information d'affichage énergétique sur ce bien : classe ENERGIE D indice 212 et classe CLIMAT D indice 45. Les informations sur les risques auxquels ce bien est exposé, y compris l'obligation légale de débroussaillement, sont disponibles sur le site Géorisques : http://www.georisques.gouv.fr. La présente annonce immobilière a été rédigée sous la responsabilité éditoriale de M Julien Siegfried mandataire indépendant en immobilier (sans détention de fonds), agent commercial de la SAS I@D France immatriculé au RSAC de Nanterre sous le numéro 904668787, titulaire de la carte de démarchage immobilier pour le compte de la société I@D France SAS.
Détails de l'annonce
Localisation
Ville
Courbevoie
Pays
FR
Diagnostics / Énergie
Diagnostic DPE
212
Diagnostic GES
45
Surfaces / Pièces / Composition
Nombre d’étages
6
Étage
2
Chauffage et diagnostics
Diagnostic de performance énergétique (DPE)
a
b
c
d
e
f
g
Indice d'émission de gaz à effet de serre (GES)
a
b
c
d
e
f
g
