Vente Maison/villa 5 pièces
Type
Bien immobilierTarif
153 500 €Chambres
3Salles de bain
0Vente Maison/villa 5 pièces
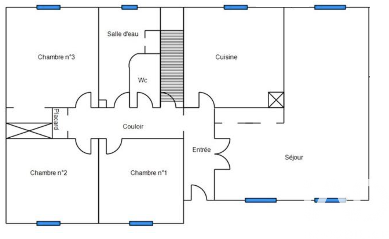
Iad France - Arnaud Bonnet vous propose : / Rilhac-Rancon / Demi sous-sol / 3 chambres / Située dans un quartier calme et recherché de Rilhac-Rancon, cette maison des années 70, sur sous-sol, offre un excellent potentiel après quelques travaux de rafraîchissement. 86 m² habitables : - salon-séjour de 29 m² - cuisine séparée de 9 m² - 3 chambres de 9,8 à 12,6 m² - salle d’eau - WC Le tout sur un terrain clos de 640 m², idéal pour profiter des beaux jours. * Chauffage au gaz de ville * Tout-à-l’égout * Double vitrage PVC * Une maison fonctionnelle parfaite pour un premier achat ou un projet de rénovation familiale. Honoraires d'agence à la charge du vendeur. Information d'affichage énergétique sur ce bien : classe ENERGIE E indice 281 et classe CLIMAT E indice 61. Les informations sur les risques auxquels ce bien est exposé, y compris l'obligation légale de débroussaillement, sont disponibles sur le site Géorisques : http://www.georisques.gouv.fr. La présente annonce immobilière a été rédigée sous la responsabilité éditoriale de M Arnaud Bonnet mandataire indépendant en immobilier (sans détention de fonds), agent commercial de la SAS I@D France immatriculé au RSAC de LIMOGES sous le numéro 922138623, titulaire de la carte de démarchage immobilier pour le compte de la société I@D France SAS.
Détails de l'annonce
Localisation
Ville
Rilhac-Rancon
Pays
FR
Diagnostics / Énergie
Diagnostic DPE
281
Diagnostic GES
61
Surfaces / Pièces / Composition
Nombre d’étages
Chauffage et diagnostics
Diagnostic de performance énergétique (DPE)
a
b
c
d
e
f
g
Indice d'émission de gaz à effet de serre (GES)
a
b
c
d
e
f
g
