Vente Maison/villa 4 pièces
Type
Bien immobilierTarif
135 000 €Chambres
3Salles de bain
0Vente Maison/villa 4 pièces
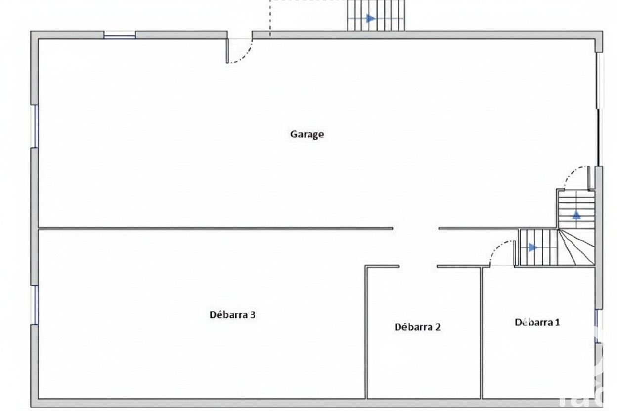
Iad France - Maud Triquard vous propose : Vie de plain-pied possible dans cette maison avec travaux, parfaitement bien située à 500m des commerces, rue du Dauphiné. Surface terrain 799 m². Beau potentiel. La maison se compose comme suit : Au niveau de l'étage vie de plain-pied, une entrée avec véranda, trois chambres (10,11 et 22 m² dont deux avec placard), le salon de 30 m², très lumineux, avec parquet bois et donnant sur la terrasse, la cuisine et son espace dinatoire séparés (possibilité d'ouvrir), une salle d'eau, un toilette, un petit bureau avec placard, une buanderie avec toilette. Accès au jardin par la cuisine via un escalier extérieur. Au sous sol, un garage de 61 m² avec eau, un espace de rangement de 35 m², une cave, une pièce à rénover pouvant servir de chambre / bureau. Des travaux sont à prévoir : simple vitrage bois sauf la véranda et cuisine, volets roulant bois sauf salon, cuisine et véranda. Remise au gout du jour, un peu électricité. Isolation 2016, dessous de toit en PVC 2016, véranda aluminium 2016. Parquet bois dans le salon et la chambre de 22 m² Chauffage gaz de ville, tout à l'égout Au plaisir de vous la faire visiter ! Honoraires d'agence à la charge du vendeur. Information d'affichage énergétique sur ce bien : classe ENERGIE F indice 325 et classe CLIMAT F indice 71. Les informations sur les risques auxquels ce bien est exposé, y compris l'obligation légale de débroussaillement, sont disponibles sur le site Géorisques : http://www.georisques.gouv.fr. La présente annonce immobilière a été rédigée sous la responsabilité éditoriale de Mme Maud Triquard mandataire indépendant en immobilier (sans détention de fonds), agent commercial de la SAS I@D France immatriculé au RSAC de POITIERS sous le numéro 750521783, titulaire de la carte de démarchage immobilier pour le compte de la société I@D France SAS.
Détails de l'annonce
Localisation
Ville
Cenon-sur-Vienne
Pays
FR
Diagnostics / Énergie
Diagnostic DPE
325
Diagnostic GES
71
Surfaces / Pièces / Composition
Nombre d’étages
2
Chauffage et diagnostics
Diagnostic de performance énergétique (DPE)
a
b
c
d
e
f
g
Indice d'émission de gaz à effet de serre (GES)
a
b
c
d
e
f
g
