MAISON F5 140M ST JOSEPH
Type
Bien immobilierTarif
390 600 €Chambres
4Salles de bain
1MAISON F5 140M ST JOSEPH
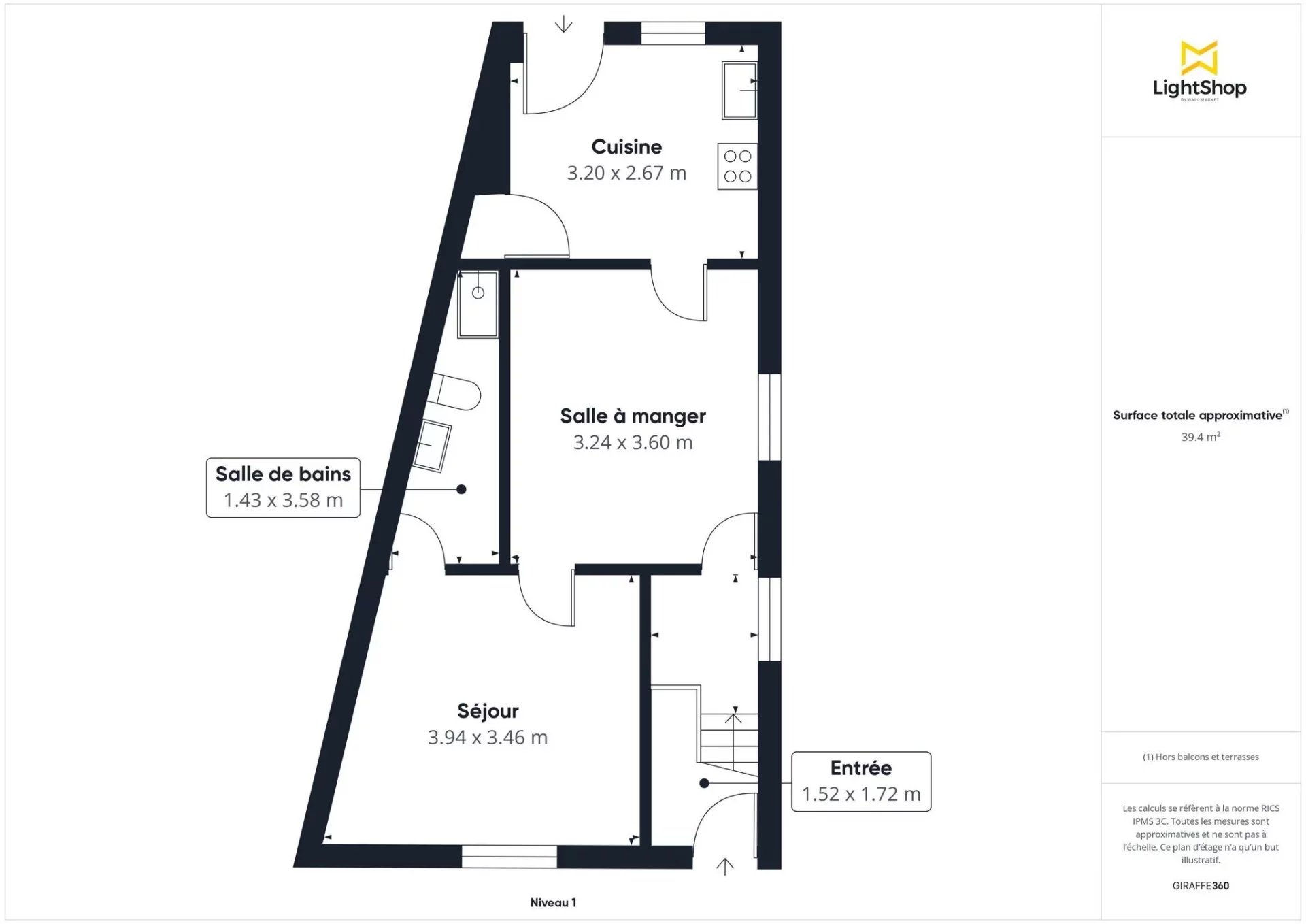
MAXImmo vous propose dans le secteur très prisé de la ligne Trovalet, à seulement 1 minute de toutes commodités notamment du centre Leclerc Les Terrass, cette élégante maison de 140 m² habitables conjuguant confort, modernité et intimité dans un cadre de vie privilégié.
Nichée au calme absolu, au fond d'une impasse, elle séduit dès l'entrée par un vaste espace de vie de 50 m², baigné de lumière, comprenant un séjour convivial et une cuisine équipée Conforama aux lignes contemporaines. Depuis ces espaces, la clarté et l'ouverture sur l'extérieur créent une atmosphère chaleureuse et harmonieuse.
La partie nuit se compose de quatre chambres, dont une suite parentale raffinée avec dressing sur mesure qui est climatisée, ainsi qu'une deuxième chambre bénéficiant du confort de la climatisation.
Côté bien-être, une salle de bain spacieuse avec douche à l'italienne complète l'ensemble, tandis qu'un WC séparé assure la praticité au quotidien.
Pensée pour la détente et les loisirs, la maison dispose d'une piscine au sel (profondeur de 1,40 m à 2 m) offrant une superbe vue mer, d'une possible salle de sport ou d'une dépendance, au choix, et d'une cuisine extérieure idéale pour recevoir.
Les prestations sont remarquables : appareillages neufs, panneaux photovoltaïques 6 kW, garage, quatre stationnements privatifs, ainsi que des combles aménageables offrant un potentiel supplémentaire selon vos envies. L'ensemble est entièrement clôturé, garantissant sérénité et intimité.
Enfin, vous apprécierez la qualité de vie qu'offre ce bien d'exception, qui est vendu tout meublée, avec une taxe foncière limitée à 1910 €.
Un lieu rare, conjuguant prestations modernes, espaces généreux et vue sur la mer.
À découvrir rapidement !!!
Prix TTC et Honoraires à charge vendeur TTC Mandat n° 13 041
Réseau MAXImmo -
Plus d'informations et consultation de nos tarifs sur www.maximmo.re
Les informations sur les risques auxquels ce bien est exposé sont disponibles sur le site Géorisques : www.georisques.gouv.fr'
Honoraires à la charge du vendeur. Non soumis au DPE. Les informations sur les risques auxquels ce bien est exposé sont disponibles sur le site Géorisques : georisques.gouv.fr.
Votre conseiller MAXImmo : Maaz DHALED
Agent commercial (Entreprise individuelle)
Détails de l'annonce
Finances / Mandat / Références
Charges
€
Localisation
Ville
Saint Joseph
Pays
France
Surfaces / Pièces / Composition
Surface habitable
140 m²
Caractéristiques / Équipements
Ascenseur
Digicode
Interphone
Chauffage et diagnostics
Diagnostic de performance énergétique (DPE)
a
b
c
d
e
f
g
Indice d'émission de gaz à effet de serre (GES)
a
b
c
d
e
f
g
