Vente Maison de campagne 3 pièces
Type
Bien immobilierTarif
80 000 €Chambres
1Salles de bain
0Vente Maison de campagne 3 pièces
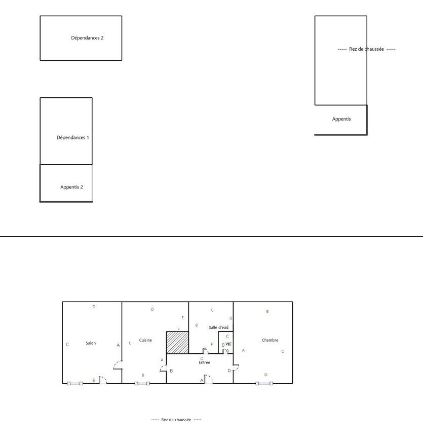
Iad France - Nathalie Sicault vous propose : NSI 1885021 Charmante maison à 300 m des habitation de 103 m² habitable et avec dépendance et 6175 m² de Terrain non clos. Venez découvrir cette maison pleine de potentiel, située dans un environnement calme et verdoyant sur la à seulement 8 km de toutes les commodités. Vaste terrain de 6 175 m², cette maison exposée plein sud, belles possibilités d’aménagement grâce à son grenier aménageable. Composition : Entrée de 5 m² Spacieuse chambre de 29 m² Salle d’eau de 8 m² WC indépendant Cuisine non aménagée de 26 m² Salle à manger lumineuse de 33 m² Une cave de 15 m² Les plus : Pompe à chaleur air / air avec climatisation réversible de 2023 Dépendance pour atelier, rangement ou projet personnel Grenier aménageable permettant la création de nouvelles pièces Maison isolée Double vitrage (sauf 2 fenêtres) À prévoir : Travaux de réfection de toiture et charpente dans la dépendance. Remaniement de la toiture de la maison. Assainissement individuel non conforme. Cette maison isolée, au calme absolu, séduira les amateurs d’espace, de nature et de projets de rénovation. N'attendez pas contactez moi pour une visite ! Honoraires d'agence à la charge du vendeur. Information d'affichage énergétique sur ce bien : classe ENERGIE C indice 168 et classe CLIMAT A indice 5. Les informations sur les risques auxquels ce bien est exposé, y compris l'obligation légale de débroussaillement, sont disponibles sur le site Géorisques : http://www.georisques.gouv.fr. La présente annonce immobilière a été rédigée sous la responsabilité éditoriale de Mme Nathalie Sicault mandataire indépendant en immobilier (sans détention de fonds), agent commercial de la SAS I@D France immatriculé au RSAC de NIORT sous le numéro 750707655, titulaire de la carte de démarchage immobilier pour le compte de la société I@D France SAS.
Détails de l'annonce
Localisation
Ville
Pliboux
Pays
FR
Diagnostics / Énergie
Diagnostic DPE
168
Diagnostic GES
5
Surfaces / Pièces / Composition
Nombre d’étages
Chauffage et diagnostics
Diagnostic de performance énergétique (DPE)
a
b
c
d
e
f
g
Indice d'émission de gaz à effet de serre (GES)
a
b
c
d
e
f
g
