Trouver...

Language: FR

Devise: EUR

CANNES CENTER - FURNISHED STUDIO - MEZZANINE

Publié le 31 December 2025
Type
Bien immobilier
Tarif
185 000 €
Chambres
0
Salles de bain
0

CANNES CENTER - FURNISHED STUDIO - MEZZANINE

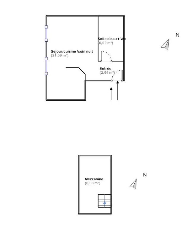
Ideal pied-à-terre / rental investment: apartment with living room, open kitchen, sleeping area, bathroom with spa bath and mezzanine! All renovated and quiet. Seasonal rental authorized. Sold furnished.
Ce mois Cette annonce est récente

À proximité

Recherche des commodités à proximité...

Détails de l'annonce

Finances / Mandat / Références

Charges
Dépôt de garantie

Localisation

Ville
Cannes
Pays
FR

Diagnostics / Énergie

Diagnostic DPE
224
Diagnostic GES
7

Chauffage / Énergie

Chauffage
Climatisation
Accès
Individuel
Énergie
Électrique
Type de chauffage
5
Énergie
3

Surfaces / Pièces / Composition

Surface (m²)
29.15 m²
Nombre de chambres
Étage
2

Caractéristiques / Équipements

Terrain viabilisé
Standing
5

Chauffage et diagnostics

Diagnostic de performance énergétique (DPE)
a
b
c
d
e
f
g
Indice d'émission de gaz à effet de serre (GES)
a
b
c
d
e
f
g
Rappelez-moi