Vente Maison/villa 5 pièces
Type
Bien immobilierTarif
332 000 €Chambres
3Salles de bain
0Vente Maison/villa 5 pièces
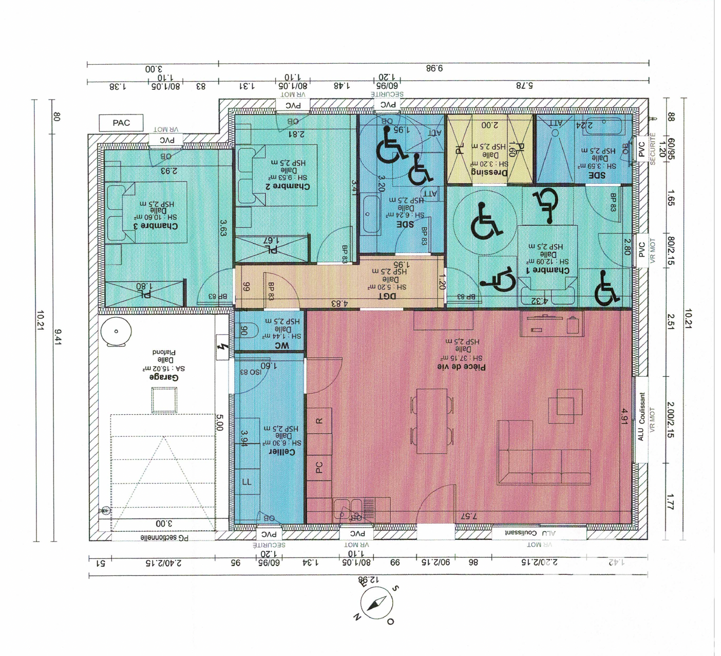
Iad France - Frédérique Pacteau vous propose : Maison de plain pied en cours de construction- (livraison en février 2026) Devenez propriétaire de cette maison de 96 m² située au sein d’un petit lotissement privé 'Les jardins du maraîcher', au centre de Talmont Saint-Hilaire. La maison comprend : Une lumineuse pièce de vie composée d'un salon / séjour et d'une cuisine ouverte aménagée et équipée par un cuisiniste local réputé (Jaune Citron), deux chambres avec placard, une salle d'eau, une suite parentale avec dressing et salle d'eau, 2 WC. Une buanderie, une belle terrasse orientée sud / ouest et un garage. Chauffage par pompe à chaleur. Norme RE2020. Les Jardins du Maraîcher constituent une adresse de choix et profitent de tous les commerces et services du centre ville à moins d’1 km. À proximité immédiate, vous trouverez une boulangerie-pâtisserie, 2 supermarchés, un centre médical. À 800 m, l’école maternelle et primaire Saint Pierre accueillera vos enfants, tout comme l’école du Payré et la crèche Les Moussaillons du Payré à 2 min. À seulement 5 minutes se trouve le Port de Plaisance de Bourgenay et la plus belle plage de Vendée, la plage de Veillon. Facile d’accès, votre nouveau lieu de vie est situé face à l’arrêt de bus des transports scolaires desservant les collèges et lycées des Sables d’Olonne. Honoraires d'agence à la charge de l'acquéreur. Prix honoraires inclus : 332000 euros. Prix hors honoraires : 320000 euros. Honoraires TTC à la charge de l'acquéreur (3,75% du prix du bien hors honoraires) : 12000 euros. Bien non soumis au DPE. Les informations sur les risques auxquels ce bien est exposé, y compris l'obligation légale de débroussaillement, sont disponibles sur le site Géorisques : http://www.georisques.gouv.fr. La présente annonce immobilière a été rédigée sous la responsabilité éditoriale de Mme Frédérique Pacteau mandataire indépendant en immobilier (sans détention de fonds), agent commercial de la SAS I@D France immatriculé au RSAC de la roche sur yon sous le numéro 429817257, titulaire de la carte de démarchage immobilier pour le compte de la société I@D France SAS.
Détails de l'annonce
Localisation
Ville
Talmont-Saint-Hilaire
Pays
FR
Chauffage et diagnostics
Diagnostic de performance énergétique (DPE)
a
b
c
d
e
f
g
Indice d'émission de gaz à effet de serre (GES)
a
b
c
d
e
f
g
