Vente Appartement 5 pièces
Type
Bien immobilierTarif
97 000 €Chambres
2Salles de bain
0Vente Appartement 5 pièces
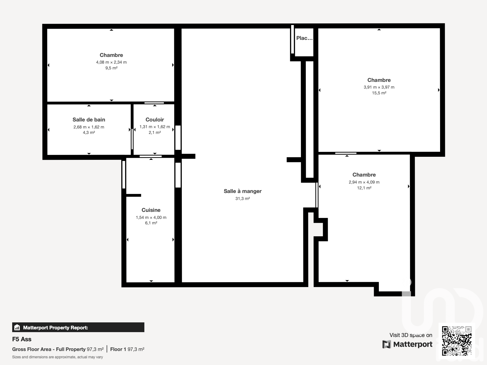
Iad France - Jessica Bourdin vous propose : Ville basse, Rue de Varennes, appartement 2 chambres avec cave. Emplacement idéal, entre centre-ville et gare. À deux pas de l’hôpital, des pompiers, cet appartement bénéficie d’un accès privilégié à toutes les commodités : commerces, écoles et transports en commun. Installé au 2ᵉ étage, il offre de beaux volumes avec : une entrée, une cuisine, un séjour double, 2 chambres, un bureau, ainsi qu’une salle d’eau avec WC. En complément, une cave et une remise. Idéal pour une famille, un premier achat, ou encore un investissement locatif, en longue durée ou en courte durée type Airbnb. Un lumineux et fonctionnel, situé dans un emplacement stratégique, à personnaliser selon vos envies ! * VISITE VIRTUELLE DISPONIBLE * La presente annonce immobiliere vise 2 lots situés dans une copropriété de 15 lots au total et ne faisant l'objet d'aucune procédure en cours citée à l'article L. 721-1 du code de la construction et de l'habitation. Montant moyen mensuel de charges déclaré par le vendeur : 40€ par mois (soit 480 € annuel). Honoraires d'agence à la charge du vendeur. Information d'affichage énergétique sur ce bien : classe ENERGIE E indice 291 et classe CLIMAT E indice 63. Les informations sur les risques auxquels ce bien est exposé, y compris l'obligation légale de débroussaillement, sont disponibles sur le site Géorisques : http://www.georisques.gouv.fr. La présente annonce immobilière a été rédigée sous la responsabilité éditoriale de Mme Jessica Bourdin mandataire indépendant en immobilier (sans détention de fonds), agent commercial de la SAS I@D France immatriculé au RSAC de MELUN sous le numéro 798057642, titulaire de la carte de démarchage immobilier pour le compte de la société I@D France SAS.
Détails de l'annonce
Localisation
Ville
Montereau-Fault-Yonne
Pays
FR
Diagnostics / Énergie
Diagnostic DPE
291
Diagnostic GES
63
Surfaces / Pièces / Composition
Nombre d’étages
3
Étage
2
Chauffage et diagnostics
Diagnostic de performance énergétique (DPE)
a
b
c
d
e
f
g
Indice d'émission de gaz à effet de serre (GES)
a
b
c
d
e
f
g
