Vente Maison/villa 7 pièces
Type
Bien immobilierTarif
299 000 €Chambres
4Salles de bain
0Vente Maison/villa 7 pièces
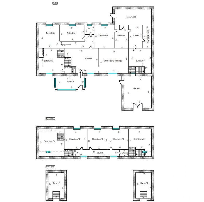
Iad France - Sandra DEFAUCHY vous propose : LONGPERRIER – Maison atypique aux beaux volumes avec dépendance, à réinventer selon vos envies Amoureux des espaces à personnaliser, laissez-vous séduire par cette maison pleine de potentiel. Située dans un quartier calme et résidentiel, elle déploie 185 m² habitables sur un terrain de 315 m². Vous y découvrirez de généreuses pièces de vie, 3 chambres, 2 bureaux, 1 salle d’eau, 2 WC, ainsi qu’un T2 indépendant avec entrée privative : idéal pour un projet locatif, un bureau professionnel ou une suite d’amis. À cela s’ajoutent 2 caves, un garage, une piscine hors-sol pour vos moments de détente, et bien d’autres atouts insoupçonnés. Son charme ne demande qu’à être réveillé : quelques travaux de rafraîchissement suffiront pour en faire une maison unique, à votre image. Côté confort, vous profiterez déjà d’une isolation performante, double vitrage, chauffage gaz, climatisation réversible, ballon thermodynamique et de nombreux rangements. Idéalement située, à deux pas des écoles, commerces et transports (bus à 100 m), à seulement 15 minutes de l’aéroport CDG, le tout dans un cadre verdoyant. Un bien rare, pensé pour ceux qui savent voir au-delà des murs et imaginer leur futur. Les dernières photos présentées sont des propositions d’aménagement après travaux afin de vous aider à vous projeter. Collaboration interagence et entre mandataires bienvenue – n’hésitez pas à me contacter. Honoraires d'agence à la charge du vendeur. Information d'affichage énergétique sur ce bien : classe ENERGIE C indice 159 et classe CLIMAT C indice 15. Les informations sur les risques auxquels ce bien est exposé, y compris l'obligation légale de débroussaillement, sont disponibles sur le site Géorisques : http://www.georisques.gouv.fr. La présente annonce immobilière a été rédigée sous la responsabilité éditoriale de Mme Sandra DEFAUCHY mandataire indépendant en immobilier (sans détention de fonds), agent commercial de la SAS I@D France immatriculé au RSAC de Compiègne sous le numéro 502327034, titulaire de la carte de démarchage immobilier pour le compte de la société I@D France SAS.
Détails de l'annonce
Localisation
Ville
Longperrier
Pays
FR
Diagnostics / Énergie
Diagnostic DPE
159
Diagnostic GES
15
Surfaces / Pièces / Composition
Nombre d’étages
2
Chauffage et diagnostics
Diagnostic de performance énergétique (DPE)
a
b
c
d
e
f
g
Indice d'émission de gaz à effet de serre (GES)
a
b
c
d
e
f
g
