Vente Maison/villa 7 pièces
Type
Bien immobilierTarif
730 000 €Chambres
4Salles de bain
0Vente Maison/villa 7 pièces
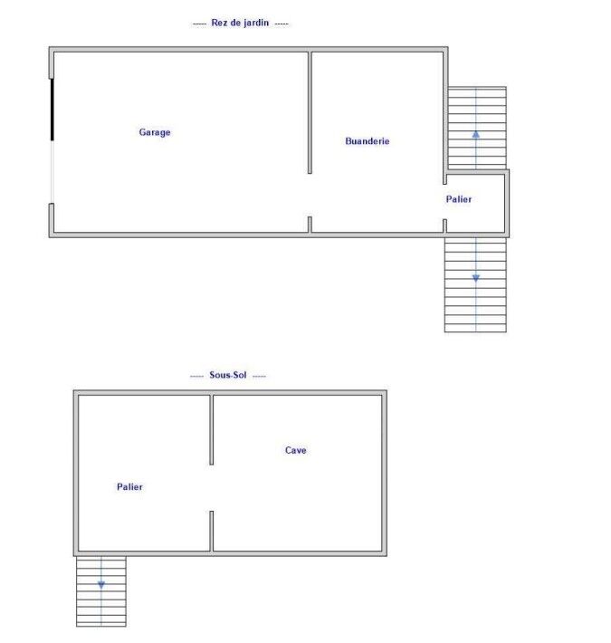
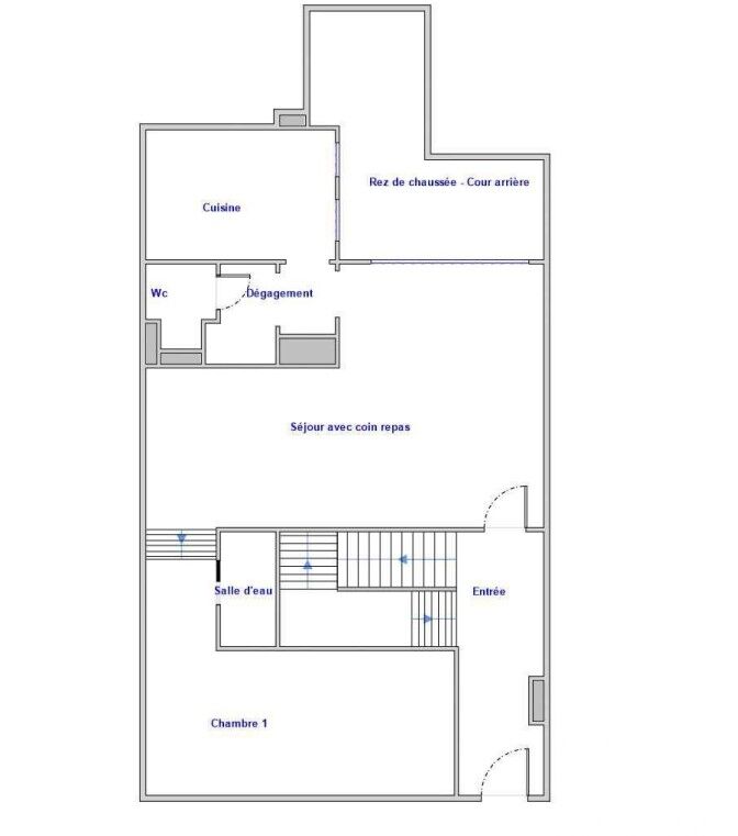
Iad France - David Bitton vous propose : Opportunité à saisir - Au centre du quartier de la varenne proche de toutes les commodités - Idéal Investisseur ou grande famille. Maison à rénover avec beaucoup de potentiel. À la recherche d'une maison de ville à rénover selon vos goûts et besoins ? Ne cherchez plus, cette belle maison est faite pour vous. Construite dans les années 1930 sur une parcelle de 152 m², cette maison de 123 m² habitable (170 m² utiles) sur trois niveaux offre de nombreuses possibilités d'aménagement pour créer votre cocon familial idéal. Elle est dotée de 7 pièces dont un 2 pièces au RDC avec cuisine, 2 studios entièrement équipés, 3 chambres et une cuisine au dernier étage. Chaque espace est à repenser pour en faire un lieu de vie harmonieux et fonctionnel. La disposition des pièces peut être modulée pour correspondre à votre mode de vie. Cette maison et idéal également pour un investisseur qui chercherai un rendement locatif non négligeable (Possibilité d'agrandir au RDC et de rajouter un étage supplémentaire). Située à proximité de toutes les commodités (Ecole, RER et Commerce), cette maison bénéficie d'une exposition Sud et Nord, apportant luminosité et chaleur tout au long de la journée. Il est également possible d'aménager un espace extérieur en fonction de vos envies, que ce soit un jardin, une terrasse ou un balcon. Honoraires d'agence à la charge du vendeur. Information d'affichage énergétique sur ce bien : classe ENERGIE E indice 327 et classe CLIMAT B indice 10. Les informations sur les risques auxquels ce bien est exposé, y compris l'obligation légale de débroussaillement, sont disponibles sur le site Géorisques : http://www.georisques.gouv.fr. La présente annonce immobilière a été rédigée sous la responsabilité éditoriale de M David Bitton mandataire indépendant en immobilier (sans détention de fonds), agent commercial de la SAS I@D France immatriculé au RSAC de CRETEIL sous le numéro 930768148, titulaire de la carte de démarchage immobilier pour le compte de la société I@D France SAS.
Détails de l'annonce
Localisation
Ville
Saint-Maur-des-Fossés
Pays
FR
Diagnostics / Énergie
Diagnostic DPE
327
Diagnostic GES
10
Surfaces / Pièces / Composition
Nombre d’étages
3
Chauffage et diagnostics
Diagnostic de performance énergétique (DPE)
a
b
c
d
e
f
g
Indice d'émission de gaz à effet de serre (GES)
a
b
c
d
e
f
g
