Trouver...

Language: FR

Devise: EUR

Type
Bien immobilier
Tarif
339 000 €
Chambres
2
Salles de bain
0

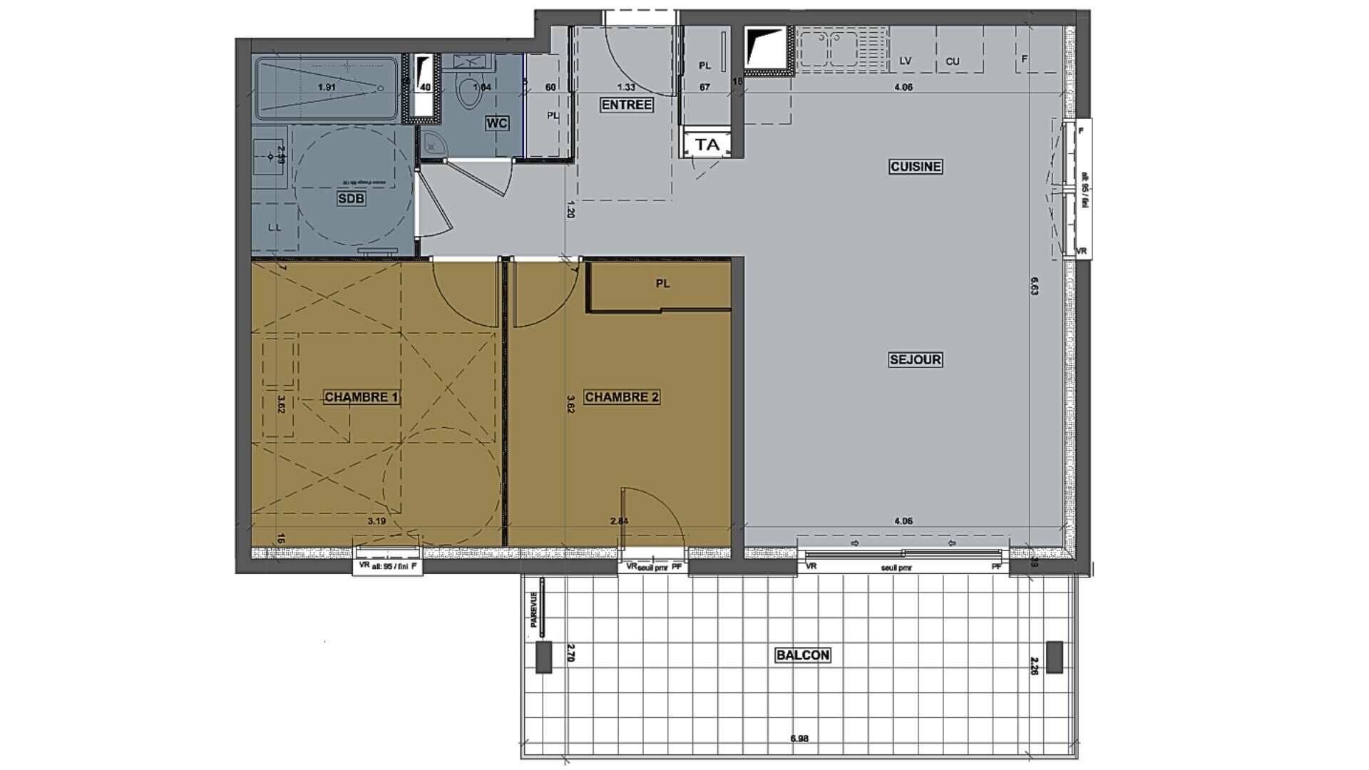
Vente Appartement 3 pièces

Iad France - Sarah Rozière (06 99 86 19 42) vous propose : Appartement T3 avec balcon à Claix. Nichée au cOEur d’un parc classé à la française dans la commune de Claix, à seulement 15 minutes de Grenoble, la résidence Domaine Férédie offre un cadre de vie exceptionnel alliant charme et architecture contemporaine. Cette résidence s’inscrit dans un environnement verdoyant, entre nature préservée et proximité immédiate des commodités. Disponible 2027. Un appartement raffiné : Situé au 1 er étage, cet appartement T3 de 64 m² environ habitables se prolonge par un balcon de 16 m² environ. - Séjour / cuisine de 27 m² environ. - Deux chambres confortables. - Salle de bains moderne et wc séparé. - Annexe incluse : 1 garage privatif. De belles prestations : - Chauffage collectif au bois granulés, avec thermostat d’ambiance programmable. - Menuiseries aluminium à rupture de pont thermique et volets roulants motorisés. - Résidence sécurisée avec accès par badge nominatif et parking en sous-sol. - Jardin à la française privatif, espaces verts et aires de détente pour les résidents L’art de vivre à Claix : - À seulement 300 m du centre-bourg et de ses commerces. - Accès rapide à l’A480 et à l’A51. - Tramway et gare SNCF de Pont-de-Claix à 10 minutes. - Espaces naturels et randonnées accessibles directement depuis la résidence. - Vues dégagées sur les massifs du Vercors et de Belledonne. N’hésitez pas à me contacter pour plus d’informations ou pour un accompagnement sur mesure. Honoraires d’agence à la charge du vendeur. Bien non soumis au DPE. Les informations sur les risques auxquels ce bien est exposé sont disponibles sur le site Géorisques : www.georisques.gouv.fr. La présente annonce immobilière a été rédigée sous la responsabilité éditoriale de Mlle Sarah Rozière EI (ID 83696), mandataire indépendant en immobilier (sans détention de fonds), agent commercial de la SAS I@D France immatriculé au RSAC de Clermont-Ferrand sous le numéro 978616993, titulaire de la carte de démarchage immobilier pour le compte de la société I@D France SAS. Retrouvez tous nos biens sur notre site internet. www.iadfrance.fr.

Détails de l'annonce

Localisation

Ville
Claix
Pays
FR

Surfaces / Pièces / Composition

Nombre d’étages
2

Chauffage et diagnostics

Diagnostic de performance énergétique (DPE)
a
b
c
d
e
f
g
Indice d'émission de gaz à effet de serre (GES)
a
b
c
d
e
f
g
Rappelez-moi
Nos partenaires