Vente Maison/villa 5 pièces
Type
Bien immobilierTarif
80 500 €Chambres
4Salles de bain
0Vente Maison/villa 5 pièces
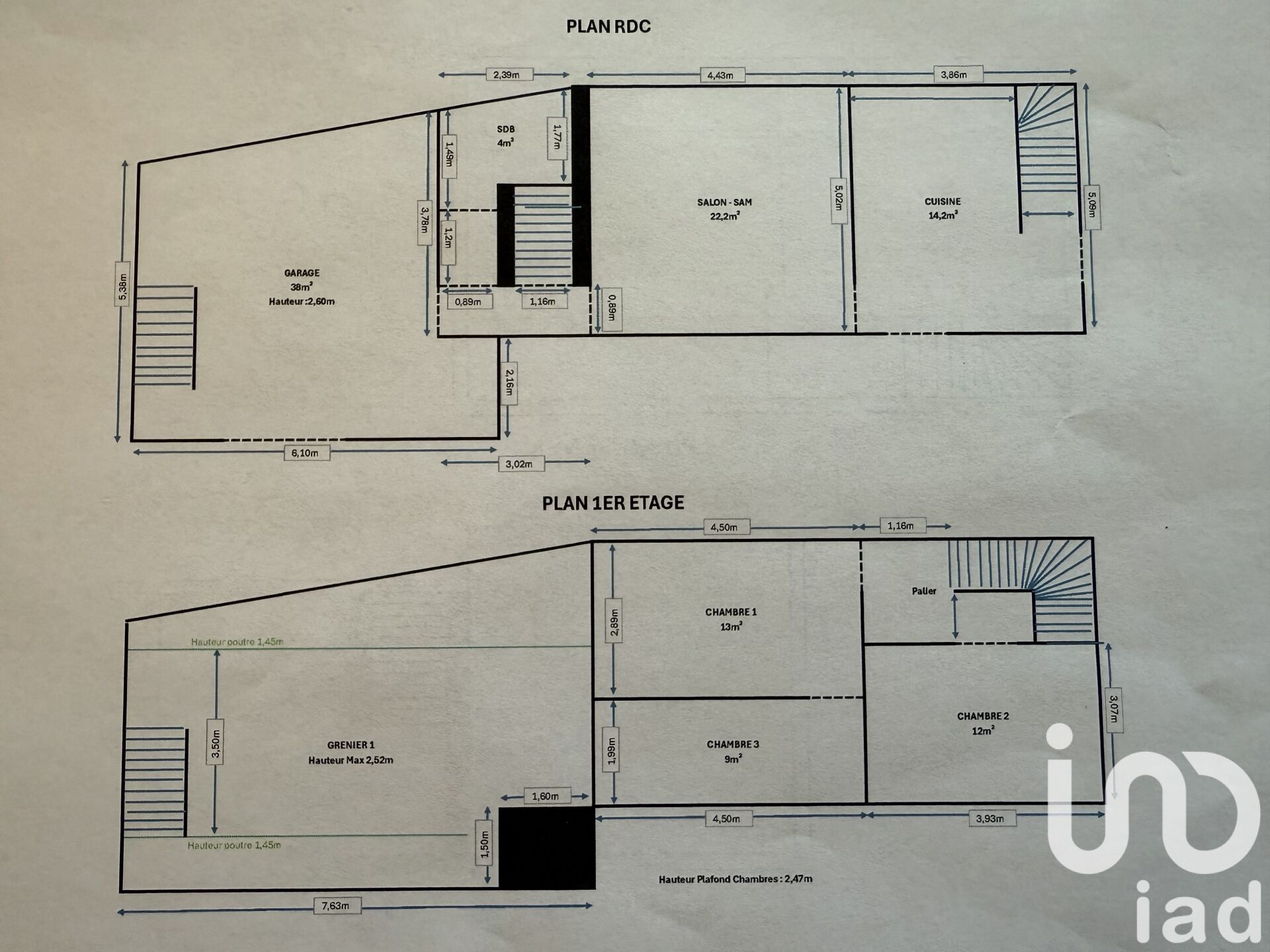
Iad France - Stephanie Trichot vous propose : Cirey-sur-Vezouze - Maison 104 m² - Chambres - Garage - Terrasse - Cave voûtée Nichée au cOEur du paisible village de Cirey-sur-Vezouze, cette maison individuelle offre un cadre de vie authentique et chaleureux. Actuellement louée, cette maison, est présentée à un prix attractif. Au rez-de-chaussée se trouvent un séjour lumineux, une cuisine équipée et un espace repas convivial. Ces espaces de vie offrent une atmosphère chaleureuse où il fait bon se retrouver en famille ou entre amis. Une terrasse, avec vue sur le ruisseau de Châtillon, vient compléter cet espace et est idéale pour profiter des journées ensoleillées. À l'étage, 3 chambres offrent des espaces de repos confortables ainsi qu'une salle d'eau (avec fenêtre) et un toilette. Un grenier offre un potentiel d'extension / rangement pour optimiser encore davantage. Pour votre confort, un garage et de nombreuses places de parking à proximité vous permettront de stationner facilement (et recharger un véhicule). Une grande cave voûtée offre près de 35 m² de surface supplémentaire. Transports en commun présents dans la commune. La maison est équipée de la fibre optique. Cette maison, individuelle, offre un cadre de vie agréable. Actuellement loué, elle représente un investissement stratégique qui en fait un produit attractif sur le marché. Louée ou en résidence principale, cette maison apportera du confort à ses occupants. Chauffage électrique La maison est actuellement louée 600e / mois Ne manquez pas cette opportunité unique d'acquérir une maison aux ambitieux volumes à Cirey-sur-Vezouze. Contactez-moi pour organiser une visite dès maintenant ! Honoraires d'agence à la charge du vendeur. Information d'affichage énergétique sur ce bien : classe ENERGIE F indice 393 et classe CLIMAT C indice 13. Les informations sur les risques auxquels ce bien est exposé, y compris l'obligation légale de débroussaillement, sont disponibles sur le site Géorisques : http://www.georisques.gouv.fr. La présente annonce immobilière a été rédigée sous la responsabilité éditoriale de Mme Stephanie Trichot mandataire indépendant en immobilier (sans détention de fonds), agent commercial de la SAS I@D France immatriculé au RSAC de NANCY sous le numéro 418703237, titulaire de la carte de démarchage immobilier pour le compte de la société I@D France SAS.
Détails de l'annonce
Localisation
Ville
Cirey-sur-Vezouze
Pays
FR
Diagnostics / Énergie
Diagnostic DPE
393
Diagnostic GES
13
Surfaces / Pièces / Composition
Nombre d’étages
3
Chauffage et diagnostics
Diagnostic de performance énergétique (DPE)
a
b
c
d
e
f
g
Indice d'émission de gaz à effet de serre (GES)
a
b
c
d
e
f
g
