Vente Appartement 4 pièces
Type
Bien immobilierTarif
394 000 €Chambres
3Salles de bain
0Vente Appartement 4 pièces
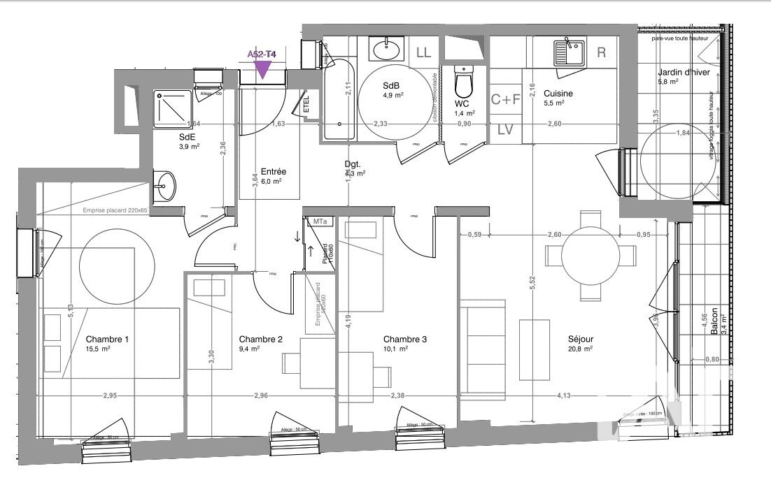
Iad France - Bruno Papin vous propose : ILE SAINT DENIS - GRAND PARIS - VUE SUR LA SEINE- Eco quartier au sud de L'île Saint Denis. APPARTEMENT + PLACE DE PARKING EXTERIEUR de 82 m² - (inclus dans le prix) les + CALME ET TRANQUILLE- AUCUN TRAVAUX - Quatre pièces - Appartement de 82 m² situé au 5ème étage avec ascenseur comprenant : une entrée de 6 m², un séjour de 22 m², - Trois chambres : une chambre de 16 m² environ, une chambre de 10 m² environ, une chambre de 10 m² - Une salle de bains 5 m² environ, une salle d'au de 4 m², un wc de 1 m² environ, - Une cuisine de 6 m², un dégagement de 5 m², placards et rangements, un loggia de 6 m², un balcon de 5 m². - Pas de vis - à - vis, des deux côtés de l'appartement (traversant, est-ouest) - ESPACE DE DETENTE A PARTAGER SUR TERRASSE. - Taxe foncière 1383e, charge 132e par mois (eau froide, eau chaude, chauffage collectif, ascenseur, espace vert jardin, ménage, résidence fermée et sécurisée) - Consommation électrique 80e par mois environ - Local vélo et poussettes. - Proche des transports en communs bus 237,166, 137, métro ligne 13 et 14 à la mairie de Saint-Ouen. Des axes routiers N186, N14, A86, A15, A1. Magasins de proximité et des grandes surfaces, des écoles et des lycées ainsi que des crèches. Parc des Chanteraines, parcours sportif et détente et vélo, parc départementale de l'île Saint Denis, et proche du square à 5mm, nouvelle passerelle olympique longeant à la gare de carrefour Pleyel à pied 10mm. Bien rare et calme, c'est un coup de cOEur assuré, pas de travaux. PLACE DE PARKING - CENTRALE DE MOBILITE A L'EXTERIEUR BAIL DE 22 ANS (contrat d'amodiation 2017) Conseiller 7 / 7 jours de 9h à 21h au 0 6.20. 47.41. 26. IDEAL FAMILLE OU JEUNE COUPLE DIMANCHE SUR RENDEZ-VOUS LIBRE DE SUITE ET DISPONIBLE. La presente annonce immobiliere vise 1 lot situé dans une copropriété de 32 lots au total et ne faisant l'objet d'aucune procédure en cours citée à l'article L. 721-1 du code de la construction et de l'habitation. Montant moyen mensuel de charges déclaré par le vendeur : 132.67€ par mois (soit 1592 € annuel). Honoraires d'agence à la charge du vendeur. Information d'affichage énergétique sur ce bien : classe ENERGIE B indice 97 et classe CLIMAT B indice 8. Les informations sur les risques auxquels ce bien est exposé, y compris l'obligation légale de débroussaillement, sont disponibles sur le site Géorisques : http://www.georisques.gouv.fr. La présente annonce immobilière a été rédigée sous la responsabilité éditoriale de M Bruno Papin mandataire indépendant en immobilier (sans détention de fonds), agent commercial de la SAS I@D France immatriculé au RSAC de BOBIGNY sous le numéro 827638818, titulaire de la carte de démarchage immobilier pour le compte de la société I@D France SAS.
Détails de l'annonce
Localisation
Ville
L'Île-Saint-Denis
Pays
FR
Diagnostics / Énergie
Diagnostic DPE
97
Diagnostic GES
8
Surfaces / Pièces / Composition
Nombre d’étages
6
Étage
5
Chauffage et diagnostics
Diagnostic de performance énergétique (DPE)
a
b
c
d
e
f
g
Indice d'émission de gaz à effet de serre (GES)
a
b
c
d
e
f
g
