Grande maison indépendante avec dépendance pro et garage haute capacité 3m hauteur
Publié le 4 March 2026
Type
Bien immobilierTarif
599 000 €Chambres
5Salles de bain
2Grande maison indépendante avec dépendance pro et garage haute capacité 3m hauteur
Je vous présente cette belle maison non mitoyenne, récemment rénovée, située dans un quartier calme du Pileu.
Avec ses 150 m² sur un terrain de 1000 m² arboré et fleuri, cette maison offre un cadre de vie agréable. La maison dispose également d'une dépendance en verrière de 30 m², idéale pour une activité professionnelle.
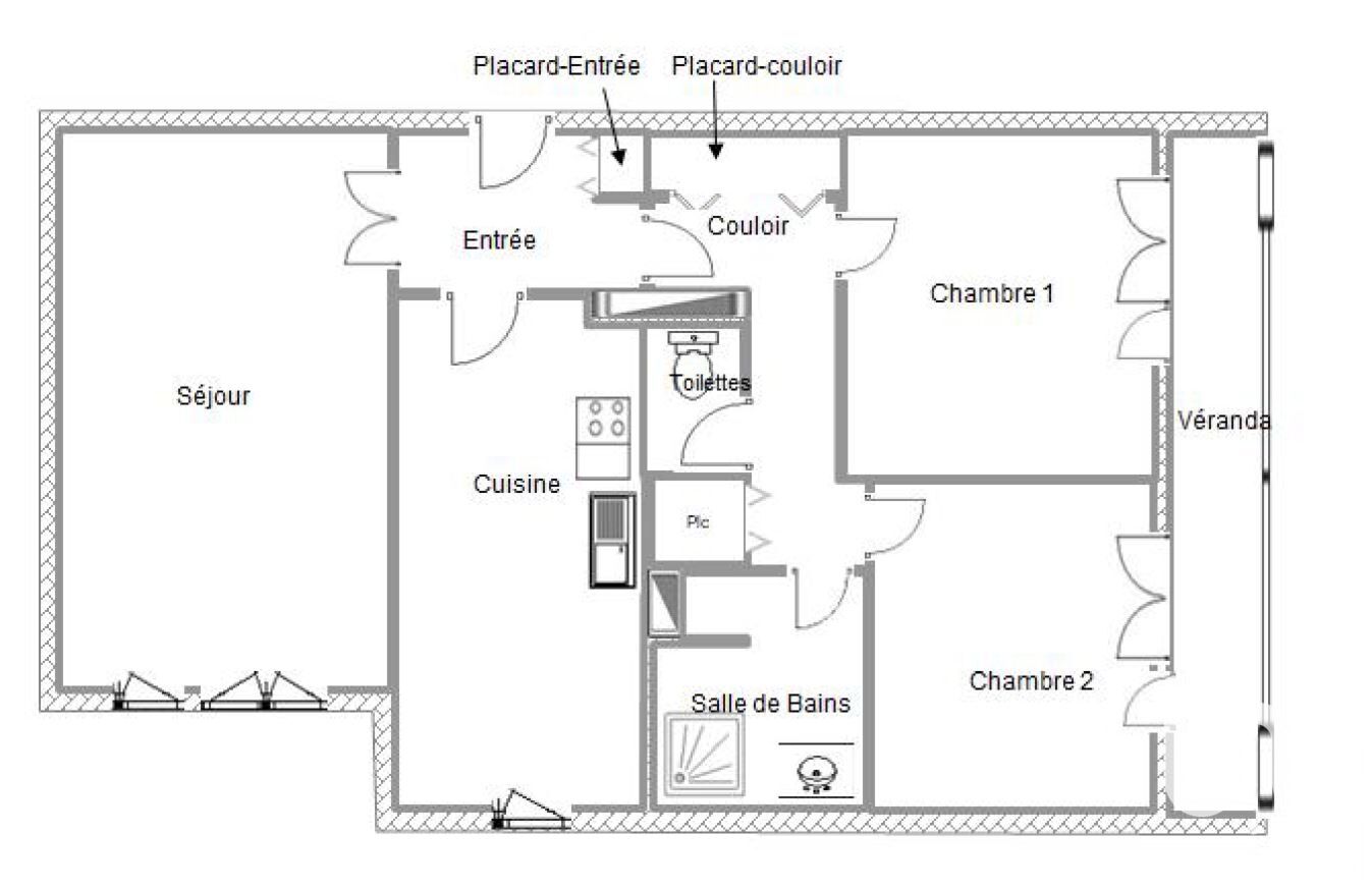
Au rez-de-chaussée :
Cuisine ouverte toute équipée donnant sur un salon/salle à manger traversant de 30 m², deux chambres, WC séparé et salle de bain.
A l'étage :
Deux grandes chambres avec dressings, bureau, salle de bain et espace à aménager.
Sous-sol total de plus de 100 m², avec une hauteur sous plafond de 2m20.
Il comprend deux garages, dont l'un pouvant accueillir un camion grâce à une hauteur de 3m25.
Vous y trouverez également une buanderie équipée, une salle de jeux ou de sport, ainsi qu'un espace de rangement et une chaufferie.
Maison bien isolée avec fenêtres double vitrage (2019) et radiateurs en fonte. Le terrain offre également un potager et des arbres fruitiers.
Si vous cherchez une maison alliant confort, espace et tranquillité, dans un cadre naturel privilégié, cette maison est faite pour vous.
N'hésitez pas à me contacter pour organiser une visite et découvrir par vous-même tout le potentiel de cette maison.
DPE : E, GES : E.
Prix : 599 000 euros Honoraires à la charge du vendeur.
Pour visiter et vous accompagner dans votre projet, contactez Hanan CHETOUANI, au O6 66 55 68 O4 ou par courriel à h.chetouani@proprietes-privees.com. Référence 441395HCHE
Selon l'article L.561.5 du Code Monétaire et Financier, pour l'organisation de la visite, la présentation d'une pièce d'identité vous sera demandée.
Cette présente annonce a été rédigée sous la responsabilité éditoriale de Hanan CHETOUANI agissant sous le statut d'agent commercial immatriculé au RSAC evry 844670588 auprès de la SAS PROPRIETES PRIVEES, au capital de 40 000 euros, ZAC LE CHÊNE FERRÉ - 44 ALLÉE DES CINQ CONTINENTS 44120 VERTOU; SIRET 487 624 777 00040, RCS Nantes. Carte professionnelle Transactions sur immeubles et fonds de commerce (T) et Gestion immobilière (G) n° CPI 4401 2016 000 010 388 délivrée par la CCI Nantes - Saint Nazaire. Compte séquestre n°30932508467 BPA SAINT-SEBASTIEN-SUR-LOIRE (44230) ; Garantie GALIAN - 89 rue de la Boétie, 75008 Paris - n°28137 J pour 2 000 000 euros pour T et 120 000 euros pour G. Assurance responsabilité civile professionnelle par MMA Entreprise n° de police 120.137.405
Mandat réf : 441395- Le professionnel garantit et sécurise votre projet immobilier.
Hanan CHETOUANI (EI) Agent Commercial - Numéro RSAC : evry 844670588 - .
Ce mois
Cette annonce est récente
À proximité
Recherche des commodités à proximité...
Détails de l'annonce
Finances / Mandat / Références
Charges
€
Localisation
Ville
Igny
Pays
France
Surfaces / Pièces / Composition
Surface habitable
150 m²
Nombre de pièces
7
Nombre de chambres
5
Nombre de salles de bain
2
Caractéristiques / Équipements
Ascenseur
Digicode
Interphone
Meublé
Piscine
Gardien
Aménagement handicapés
Diagnostics / Énergie
Diagnostic DPE
E
Diagnostic GES
E
Chauffage / Énergie
Type de chauffage
Type : individuel - Énergie : fuel
Cuisine
Type de cuisine
américaine
Chauffage et diagnostics
Diagnostic de performance énergétique (DPE)
a
b
c
d
e
f
g
Indice d'émission de gaz à effet de serre (GES)
a
b
c
d
e
f
g
