Vente Appartement 5 pièces
Type
Bien immobilierTarif
119 600 €Chambres
3Salles de bain
0Vente Appartement 5 pièces
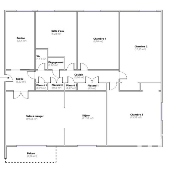
Iad France - Fanny ALVES vous propose : Appartement proche de la porte Ste Croix avec Balcon et Garage à Châlons-en-Champagne. Découvrez ce bel appartement de 92 m², spacieux, calme et lumineux idéalement situé proche des commerces, écoles et transports. Niché au sein d'une résidence bien entretenue de 4 étages, cet appartement offre de nombreux atouts pour un confort de vie optimal. L'espace se compose de 5 pièces, dont 3 chambres confortables, idéales pour accueillir une famille ou aménager un espace bureau. Une entrée dessert une cuisine indépendante, équipée de nombreux rangements pratiques. Le vaste salon-séjour, baigné de lumière, s'ouvre sur un balcon bien orienté, parfait pour profiter des beaux jours. Cet appartement dispose également d'une salle d'eau, de toilettes séparés, d'un garage et d'une cave offrant un confort de vie au quotidien. Il est équipé de la fibre optique pour une connexion internet ultra-rapide. De plus, un ascenseur facilite l'accès aux différents étages de l'immeuble. Vous bénéficierez également du chauffage au gaz de ville avec une chaudière neuve. Bien que l'appartement présente un aspect ancien, il offre de belles possibilités de personnalisation pour le mettre à votre goût. Avec un peu de travaux de rafraîchissement, vous pourrez transformer cet espace en un véritable cocon chaleureux et moderne. Ne manquez pas l'opportunité de visiter cet appartement unique à Châlons-en-Champagne. Contactez-moi dès aujourd'hui pour organiser une visite et laissez-vous séduire par le potentiel de ce bien d'exception. La presente annonce immobiliere vise 3 lots situés dans une copropriété de 74 lots au total et ne faisant l'objet d'aucune procédure en cours citée à l'article L. 721-1 du code de la construction et de l'habitation. Montant moyen mensuel de charges déclaré par le vendeur : 350€ par mois (soit 4200 € annuel). Honoraires d'agence à la charge du vendeur. Information d'affichage énergétique sur ce bien : classe ENERGIE F indice 317 et classe CLIMAT F indice 70. Les informations sur les risques auxquels ce bien est exposé, y compris l'obligation légale de débroussaillement, sont disponibles sur le site Géorisques : http://www.georisques.gouv.fr. La présente annonce immobilière a été rédigée sous la responsabilité éditoriale de Mme Fanny ALVES mandataire indépendant en immobilier (sans détention de fonds), agent commercial de la SAS I@D France immatriculé au RSAC de CHALON EN CHAMPAGNE sous le numéro 899569628, titulaire de la carte de démarchage immobilier pour le compte de la société I@D France SAS.
Détails de l'annonce
Localisation
Ville
Châlons-en-Champagne
Pays
FR
Diagnostics / Énergie
Diagnostic DPE
317
Diagnostic GES
70
Surfaces / Pièces / Composition
Nombre d’étages
4
Chauffage et diagnostics
Diagnostic de performance énergétique (DPE)
a
b
c
d
e
f
g
Indice d'émission de gaz à effet de serre (GES)
a
b
c
d
e
f
g
